



△ 南京明道康盛路学校 摄影:侯博文
设计单位 江苏中锐华东建筑设计研究院有限公司 荣朝晖工作室、南京邦建实践建筑设计事务所、东南大学建筑学院
项目地点 江苏南京
项目年份 2025年
总建筑面积 78300平方米
本文文字由设计单位提供。
快速发展的城市在实用主义驱动下迅速同质化,建筑内部特征的呈现成为最有效抵抗这一趋势的方法。南京康胜路明道学校就是在这一思想下产生的结果,学校由一座24班初中、一座30班小学和一座24班幼儿园组成。

△ 校园鸟瞰 摄影:侯博文

以住宅为主体的新城展现出来一种奇异的城市形象:南北向和东西向的不对等,整个城市似乎只有一个向度。因此康胜路明道学校沿东侧城市南北向形成了连续的空间,既形成了学校内部的共享空间,也为城市提供了另一个维度的景观。校园与城市共生共融,成为新城里的一抹亮色。



△ 校园与城市的关系 摄影:侯博文

学校最好的呈现就是内部空间的外显,没有一个画面会比有实在学生活动的场景更加动人。建筑西侧隔着操场面向城市的干道,“剖切开”的建筑是最好的学习场景的展现。

△ 设计模型 制作与摄影:荣朝晖



△ 校园面向操场的长立面 摄影:侯博文
一个巨大的灰空间包含着不同标高的平台和功能用房,营造出一个活力的非正式学习空间。剖切的状态弱化的建筑实体,让在空间内活动的学生成为了建筑的主体呈现。



△ 灰空间下容纳多种功能 摄影:侯博文

差异是九年一贯制学校的核心关键,也是人文主义的最大体现。小学和初中相邻,单元式的小学和集中式的设计是对不同年龄段学生特征的回应。巨大的西侧公共空间也体现这种差异。




△ 多样的非正式空间 摄影:侯博文
小学部分更加突出互视而让孩子们产生相互学习的可能,而初中部更强调不同空间的并置以突出成长中的活动差异。幼儿园则相对独立。




△ 教学楼内侧 摄影:侯博文

校园本就是孩子接触社会的第一站,单一的空间体验是对孩子探索欲的辜负。功能叠加的设计,不仅大幅提升了空间使用效率,更让孩子在校园里就能体验丰富多元的场景:学习、游戏、交流、探索…… 不同功能空间的交织,让校园成为一个微型小社会,让孩子在多样的体验中,感知世界的丰富。





△ 校园内部空间 摄影:侯博文

阳光,是建筑最珍贵的灵魂,也是孩子成长不可或缺的底色。学校在设计中精心打磨每一处光线处理方式,让阳光自然洒进校园的各个角落,照亮课堂,温暖操场,浸润每一个孩子的成长瞬间。不同的光影变化,让空间拥有了不同的情绪与体验,也让孩子的校园生活,多了一份自然的诗意。






△ 阳光充沛的各类空间 摄影:侯博文
设计图纸 ▽

△ 总平面图 ©荣朝晖工作室+东南大学建筑学院+南京邦建

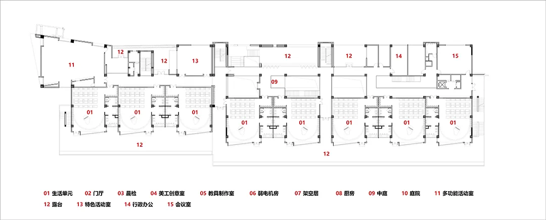
△ 中小学一层平面图 ©荣朝晖工作室+东南大学建筑学院+南京邦建

△ 中小学二层平面图 ©荣朝晖工作室+东南大学建筑学院+南京邦建

△ 中小学三层平面图 ©荣朝晖工作室+东南大学建筑学院+南京邦建


△ 幼儿园一、二层平面图 ©荣朝晖工作室+东南大学建筑学院+南京邦建

△ 初中剖面图 ©荣朝晖工作室+东南大学建筑学院+南京邦建

△ 小学剖面图 ©荣朝晖工作室+东南大学建筑学院+南京邦建
完整项目信息
项目名称:南京明道康盛路学校
项目地点:江苏南京
类别:教育建筑
项目年份:2025年
总建筑面积:78300平方米
委托方:南京江北新区、南京市城市建设投资控股(集团)有限责任公司
设计单位:江苏中锐华东建筑设计研究院有限公司 荣朝晖工作室、南京邦建实践建筑设计事务所、东南大学建筑学院
摄影师:侯博文
【初中部方案】
江苏中锐华东建筑设计研究院有限公司 荣朝晖工作室:荣朝晖、王雪丰、赵旌名、陈杨帆、黄羽迪、王恺成
【小学部方案】
东南大学建筑学院:马进、金昊吉、简海睿、刘影竹、刘映瞳
南京邦建实践建筑设计事务所:张珂、王强、邴远哲
【幼儿园方案】
东南大学建筑学院:邓浩、李美辰













