

项目北边靠近大宁商圈,南边靠近淮海路商圈,西边靠近静安寺商圈,东边靠近南京路商圈和人民广场商圈。项目周边拥有成片整齐的历史建筑群,泰兴路、石库六、老洋房,营造出一派老上海的风情,在古朴优雅的同时,项目附近的“梅泰恒"商圈又为项目增添了时尚的活力,恒隆广场,中信泰富广场,梅陇镇广场,以及南京路上的第一百货、新世界、百联世茂国际广场、东方商厦、置地广场等商厦、南京路步行街、福州路文化街等,都是日常购物的好去处。
长按识别下方二维码报名或点击文末阅读原文 请务必报名后静待销售电话确认
确认后再前往现场,为避免大客流影响服务质量
仅预约客户可进入销售现场,感谢您的理解和支持!

静安鸿 1999年拿地,占地面积为2630平,建筑面积为21300平,共计一栋楼,总户数为168 户,物业类型为商办,物业公司是上海同寅物业管理有限公司,物业费为7.5元/平米,

目前在售面积为77.45平,单层层高为2.8米,在售楼层17层,方向朝东,总价418万,项目车位只租不卖,地上车位近30个,地下车位近50个。

博鸿大厦绝版产权式小户型商务办公楼、临绿临街黄金旺铺雄踞上海南京西路商圈,静安区百年繁华之所。与上海商城、上海展览中心、梅龙镇伊势丹广场、波特曼大酒店、锦沧文化大酒店为邻。30000㎡市中心绿地,规划待建中。1-4层为产权式临街旺铺;5-26层为产权式小户型办公楼。占地面积:2585平方米,电梯3部,50个停车位。

项目参数
开发商 上海博鸿置业有限公司 物业地址 上海市静安区江宁路495号
物业公司 上海同寅置业有限公司 产权年限 50年
拿地时间 1999年 物业费 7.5元/平
在售面积 77.45平 层高 2.8米
单 价 5.8万-6万 梯户比 3梯8户
总 价 总价约450万 电费/水费 商水商电:水费5.05元/吨,电费1.4元/度
总高 26层 交房标准 地暖+中央空调
物业类型 办公楼 车位租金 1000元/月(只租不卖)



静安鸿 的商业配套也十分齐全,项目周边有梅龙镇广场、恒隆广场、中信泰富广场、金鹰购物中心、静安嘉里中心、吴江路美食一条街久光百货星巴克南京西路旗舰店等另外,项目周边有许多公园,有自然博物馆静安雕塑公园,长寿公园等等,并且博鸿大厦周边酒店也很多,例如:静安四季酒店、静安香格里拉酒店,静安波特曼大酒店等等,满足您吃喝玩乐需求。
项目位置图


周边配套
1、交通配套:轨交:地铁2号线,13号线,12号线,多条轨道交通,距离南京西路地铁站大约1.2公里,自驾:延安路高架及南北高架

2、商业配套:恒隆广场,中信泰富广场,梅陇镇广场,新世界,百联世茂国际广场,东方商厦,置地广场



3、医疗配套:华山医院,瑞金医院


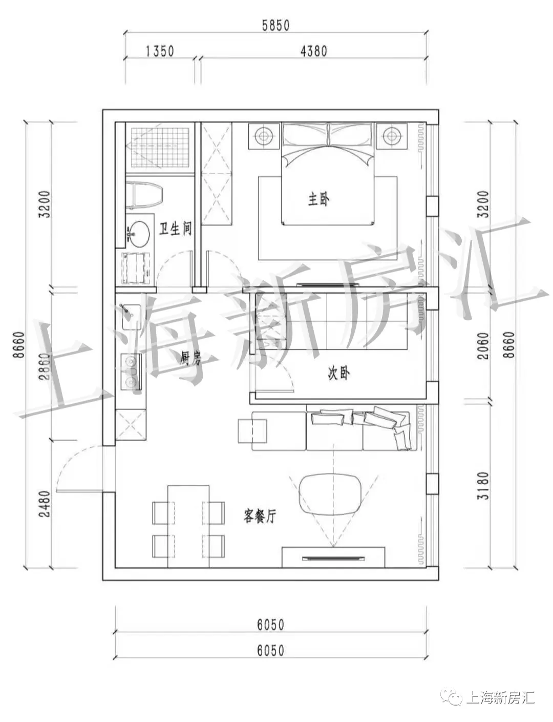
小区项目户型图

样板房照片





༺ 静安鸿 ༻ 南京西路板块 静安内环内!不限购! 建筑面积77㎡ 总价458万 四大商圈围绕 精装全配送软装
有兴趣的朋友扫描二维码进入
『静安鸿』官方预约通道
认购即送60000元物业费抵用劵(可兑换现金)
提前预约,感谢您的理解与支持!
长按识别二维码▲线上预约享更多优惠
为确保销售现场安全有序,仅预约客户方可
进入现场请务必报名后静待销售电话确认
确认后再行前往感谢您的理解和支持!
本文仅供参考,信息来源时间为2026年2月16日,有效期限为1个月。销售信息变化较快,请以案场信息为准。其中距离信息来源于百度地图,仅供参考。上述所有内容(包括但不限于标注、设施、面积等)仅供示意,所示面积为预测面积。本文对周边环境、交通、医疗、教育、商业和其他公共设施的介绍,旨在提供信息,有关本文的所有内容及一切相关事项,以政府相关部门审核批准后的文件、图测及合同、补充文本约定为准,所有关于本项目的规划设计和施工建造情况及细节,一律以购房合同约定的内容为准,本文不作为销售承诺。
单击楼盘名称即可获得楼盘详细资料 (2026年1月更新) ★★★★★目前火热在售楼盘★★★★★
点击下方了解更多
1 新上!虹口内中环通燃气【翰林阁】推出35-93㎡1-3房总价125-338万精装全配现房
2浦东碧云国际社区【碧海现代苑】建面约48㎡带景观大阳台 清盘价178万
3长宁区古北核心板块【长宁·星辰里】建面39-113㎡188-512万豪装交付
4长寿路板块 小面积 低总价 【世纪·江宁印】47㎡-132㎡218-606万 软硬装全配
5 新上!徐家汇板块小户型公寓【徐汇小筑】面积46-51㎡总价258-325万 精装现房 紧邻光启公园天然氧吧
6纯住宅公寓虹口内中环【宝隆壹方荟】推出81~112㎡总价268-328万 软硬装全配
7杨浦五角场loft公寓通燃气【财富国际广场】77㎡278万中央空调带暖精装送软硬装
8宝山长江国际旁loft公寓【尚景天地】59-77㎡288万起精装现房软硬装全送
9永久产权长宁新华风貌区【新海派·上青里】68-198㎡总价345万起 毗邻网红“上生新所
10普陀苏河畔长风商务区【朗诗藏峰】精装公寓顶楼复式别墅 建面97-339㎡总价400万起 带两个车位
115.6米层高LOFT静安内环【香榭静安】建面64-143㎡总价499-1199万 400平米空中花园定制空间
12徐汇衡复风貌区豪装公寓【襄南218】133㎡540万 三开间朝南仅此一席!
13新上!类住宅小区 虹桥商务区前湾【峰度天下】通燃气 建面156-230㎡大平层568-1100万 一梯一户 14宝山新江湾商业别墅【江湾·和悦坊】建面约184-280㎡上3下2共5层+花园+私家露台 总价570万起
15黄浦一线滨江通燃气【外滩•金南公馆】建面129-259㎡总价620-2088万 全明户型 精装全配全屋地暖
16 新上!苏河之畔·南京西路商圈【安邸·上海】整栋高级服务式艺术公馆 通燃气!建面145-272㎡ 总价950万起
17上海火车站300米!通燃气【苏河.静安里】推出117-133-142平全明户型 总价600万起 精装现房
18 新上!虹口瑞虹新城板块 整栋纯洋房公寓【鑫·海伦8弄】面积120-158㎡总价700万起 户户送飘窗
19静安内环毗邻静安寺【美丽园大厦】建面186㎡4房总价818万起 豪装全配送软装
20静安大宁芯 通燃气!【静安翡丽铂悦】整栋服务式公寓 建面157-315㎡总价850-1850万 豪华装修
21徐汇内环体育馆旁【美庐公馆】建面160-175㎡总价900-1100万 精装交付!户户带阳台
22 新上!黄浦外滩最贵1英里一线江景奢华公馆【外滩•万国府】建面约95-260㎡ 总价900万起 恭迎品鉴
23宝山吴淞地铁口独栋商业别墅!通燃气【璞圓】建面约150-250㎡总价950万起 民用水电
24陆家嘴核心!装修15000/平【陆家嘴世纪荟】建面143-265㎡现只要998万起 国金中心 佛爷百货 八佰伴旁
25 新上!徐家汇板块奢阔公馆通燃气【徐家汇星耀】面积116-179㎡总价998万起,全屋中央空调 智能精装
26闪耀登场!南京西路纯居住豪装大平层【静安太古畔】建面144-292㎡总价1000万起,会所泳池空中露台 一应俱全
27徐汇内环建国西路板块通燃气【新海派·衡复里】面积262㎡ 总价仅1380万 豪装交付
28黄浦外滩一线江景奢华公寓【谷泰滨江大厦】大平层225-248㎡,总价1480万 豪装全送
29黄浦城芯千万级总裁行政公馆【铂晶汇】 建面204~295㎡总价1860-3500万 五星级会所配套拧包入住
30长宁新江湾城【鑫湾甲邸】486㎡带300㎡私享花园露台 约2188万起! 寰幕观景,全屋智能精装大平层
31新上!静安寺旁 梧桐区芯 奢华豪装大平层【三和大厦】通燃气!建面240-700㎡总价2374万-7603万
32 新上!徐汇衡复风貌区 总裁行政公馆【藏家公馆】建面240㎡-278㎡-660㎡总价4200万起!传世资产限量争藏!
33长宁西郊国宾馆法式独栋别墅 通燃气【虹桥V16】面积685㎡4999万 花园500-1000㎡!典藏现房
34杨浦纯海派商务独栋别墅【公园央墅】燃气入户3209㎡1.6亿起
持续更新。。。。。。
亲们,最近公众号改变了推送规则,不再是按照时间先后推送文章。如果您没有把我们设为星标或经常点“在看”,可能再也看不到我们的推送了。为了不与大家失联,请随手点“在看”,并将我们星标哦~谢谢大家♡♡♡ 点击↘阅读原文↙即可进入专属咨询通道