一、园区整体情况介绍
【区位】
中广视听谷园区位于南京市鼓楼区北京西路72号,北京西路与虎踞北路交叉口
•区位优越,政商融合:紧邻江苏省委省政府、省政协;周边聚集南京艺术学院、江苏第二师范学院、南京师范大学、河海大学等众多高等学府
•地铁:4 号线、7 号线 “草场门・南艺・二师站” 出口即达,双地铁通勤便捷
•城际:车程距南京站15分钟、南京南站25分钟、南京禄口机场45分钟


【优势】
•中央广播电视总台自管园区,品质保障
•园区聚拢文化、艺术、科技产业领域优势资源,众多优质单位已入驻,如中央广播电视总台江苏总站、央视网江苏分公司、石城实验室、南师大出版社、南京艺术学院数智科创中心等
•食堂餐饮、咖啡吧、健身房、停车场、自助洗车等配套完善
•高端物业管理,7*24小时专业安保值守
二、招租信息
【待招租点位基础信息】
•1幢附属楼,共三层,临街,整栋出租:867㎡
•2幢二层,十一个房间,可单间出租:20㎡—76㎡不等
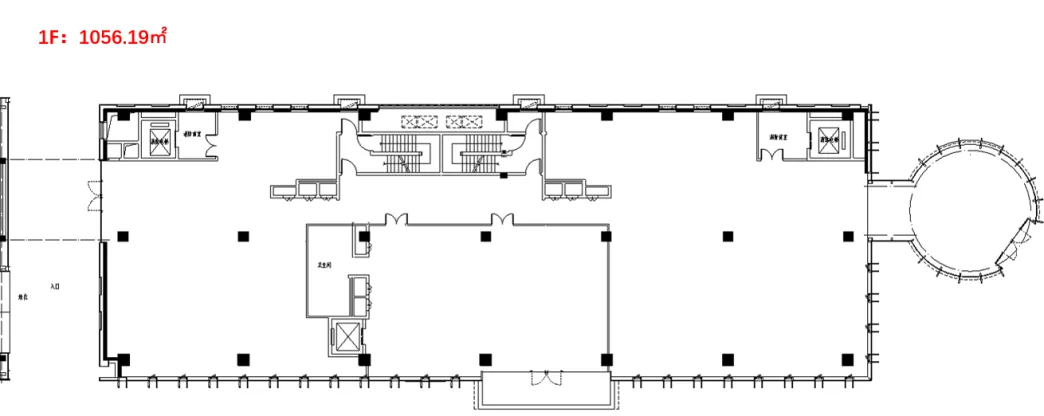
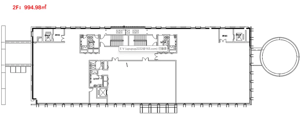
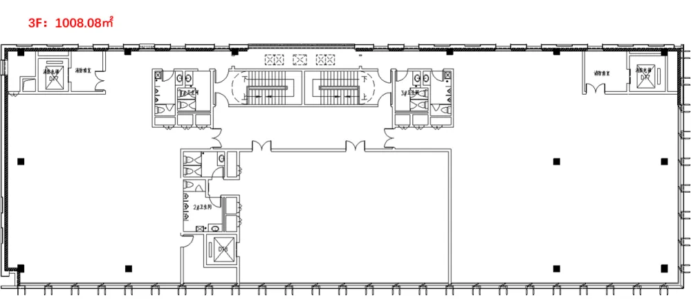
•3幢,共三层,可按层出租:995㎡—1056㎡不等
•6幢,共四层,可按层出租:360㎡—1525㎡不等

【意向产业方向】
文化创意、影视传媒、数字产业、信息科技、科技研发、文旅开发、艺术创意展陈、金融服务等
三、点位详细图片
【1幢附属楼】
外观图:


内部图:



平面图:

【2幢二层】
内部图:

环境图:

平面图:

【3幢】
外观图:

内部图:



平面图:



【6幢】
外观图:

内部图:




平面图:




附:各房间详细面积

诚邀加盟:共筑文旅融合新标杆
我们期待文化创意、影视传媒、数字产业、信息科技、科技研发、文旅开发、艺术创意展陈、金融服务等领域的优质伙伴携手入驻,共享鼓楼核心区位优势与园区平台资源,共拓产业新空间、共谱发展新篇章。
招商热线:58590848

编辑:环南艺管理办综合部
审核:刘翔

扫码关注我们|艺创环南艺

鼓楼区环南艺艺术文化街区|公众平台