节后的置业市场,早已蓄势待发。
2026年的南京楼市,彻底告别概念炒作,回归产品本质,各大板块的优质新盘纷纷拿出硬核实力,以低密规划、稀缺墅厅、四代宅创新、一线江景等核心优势,成为节后置业的核心看点。
南部新城、江北核心区、百家湖、雨核等热门板块齐聚8大优质项目;
从低密高端终改到刚需改善优选,从江景奢宅到学区精品,它们或以产品创新刷新板块标准,或以配套先行夯实居住价值,或以板块兑现踩准置业节奏;
八大新盘各握王牌,精准匹配改善客群居住需求。
趁着新春开年,提前梳理好心仪楼盘,节后便可精准出击,这份置业清单,值得收藏!
南部新城
高端低密金三角,定义改善新高度
作为南京主城的热门改善板块,南部新城2026年迎来三大纯新盘同台竞技,
三者各有定位、形成互补,以低密规划和高端配置,
共同定义板块改善新高度,也让南部新城的高端人居版图愈发清晰。
象屿天誉东方:产品创新者,刷新户型维度
作为厦门象屿首入南部新城的诚意之作,天誉东方以“天系3.0”产品为基底,精准定位板块高端改善圈层。
1.6的低容积率打造纯洋房四代宅,整个社区仅283户,稀缺性拉满。
产品端的创新是其核心竞争力,
首创的270°全景挑高墅厅搭配6米层高,将空间通透感做到极致,边侧露台、南向飘窗等赠送设计,让得房率最高可达120%。
139-172㎡的户型区间,精准匹配改善需求,其中139㎡四房做到近15米南向面宽,空间利用率堪称板块标杆。
社区配套同样拉满,约2万方云锦主题园林,搭配2000㎡地下会所+2320㎡架空层泛会所的双会所设计,户均可享85㎡公共活动空间,室内泳池、瑜伽室、儿童成长空间等功能一应俱全。
华为鸿蒙智家系统+六恒科技系统的双重加持,更让居住的舒适感和智能化拉满。
恰逢南部新城兑现窗口期,地铁6号线空载试运行、金陵万象城年内落地,项目也成为板块当之无愧的流量标杆。
嘉佰道・南京:地价天花板,填补叠墅空白
作为南部新城目前的地价天花板,嘉佰道・南京自拿地起就备受关注,而它的核心价值,在于填补了板块高端叠墅产品的空白。
项目容积率仅1.2,规划打造11栋4层低密、2栋7层洋房、2 栋10层小高层,160-240㎡的纯改善户型区间,精准锁定高净值人群。
小高层、墅厅洋房、低密多层的产品布局,满足不同高端改善需求,而金属+石材+玻璃的外立面,以“绽放”为设计母题,让建筑兼具视觉张力与隐奢质感。
作为宸嘉发展首入南京的高端作品,项目对品质的打磨尤为用心,
近期还对建筑立面、屋顶等细节进行规划调整,以精细化升级提升居住体验,也让南部新城的高端产品体系更加完善。
中信泰富G86地块:配套先行派,稳妥改善之选
深耕南部新城的中信泰富,拿下G86地块后,成为板块低密改善的又一重要选手,而它的核心优势,在于配套先行的确定性。
地块容积率1.8,是南部新城近年来难得的低密宅地,与象屿天誉东方一街之隔,板块配套共享。
根据强排规划,项目将打造叠拼、洋房、高层的多元产品,且低密住宅全部沿东侧规划公共配套用地排布,无遮挡的视野让居住体验再升级。
更值得一提的是,项目周边的配套大多已落定或在建:
东侧有规划公园绿地、幼儿园,西南角是在建的油库公园南中小学,临近地铁5号线神机营站,北侧650米就是国际路社区中心。
这意味着,未来项目交付时,周边配套基本成型,业主无需漫长等待,就能享受成熟的生活氛围,是南部新城改善客群的稳妥之选。
主城特色板块
首作与精品齐发,精准匹配多元需求
如果说南部新城是高端改善的竞技场,
那么百家湖、雨核、鼓楼北等主城特色板块的新盘,则更懂精准匹配不同客户的需求:
嘉宏首入南京的标杆之作、雨核首个四代宅、鼓楼北稀缺学区精品,它们各有特色,让主城人居的选择更加丰富。
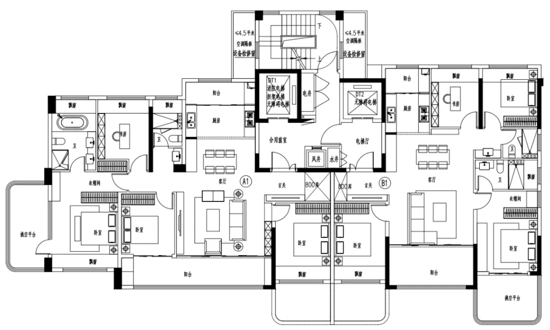
万流江宁:嘉宏首作,定调百家湖纯改善
百家湖作为南京老牌宜居板块,新房供应稀缺,
常州嘉宏的首入之作万流江宁,以纯改善定位,为板块人居升级带来新可能。
作为嘉宏“万流系”的全国首作,项目容积率1.7,规划7栋16-17层住宅,两排分布的设计实现了景观平权,让每一户都能享受优质的园林视野。
外立面的设计极具巧思,融合风帆乘浪之形与南京云锦的人文工艺,既契合百家湖的地理风貌,又彰显在地文化底蕴。
社区打造更是对标豪宅标准,7栋楼全首层架空,约2100㎡双下沉式庭院+6000㎡高端会所,配备地上地下双泳池,还有区域内首个社区全抬升底板、天光车库,细节处尽显品质。
143-235㎡的纯改善户型,打造270°转角景观厅、超6米挑空墅厅,搭配六恒科技系统,将改善居住的舒适感和仪式感拉满,也为百家湖定调了新一代纯改善的标准。
十朝春・欣悦云邸:雨核四代宅,300万起触达改善
雨核板块的新房存量告急,
十朝春・欣悦云邸预计春节后将正式对外公开售楼处、4月上市。
这将不仅完成板块的市场接力,更以板块首个四代宅的身份,让刚需改善群体也能享受到产品升级的红利。
项目以海派美学为设计内核,香槟金勾边搭配大面积玻璃幕墙,弧形门头的入户大堂,让建筑颜值与质感兼具。
6栋24层住宅全部采用5.2米首层架空设计,打造约2500㎡泛会所,为业主提供充足的休闲、娱乐空间,四代宅的垂直绿化与空间优势尽显。
99-132㎡的户型区间,精准覆盖刚需、刚改、改善等不同群体,放风价约3.4万/㎡,总价300万左右起,让雨核的置业门槛保持友好。
依托雨核成熟的配套体系,项目成为有意扎根板块的刚需改善客群的高性价比之选。
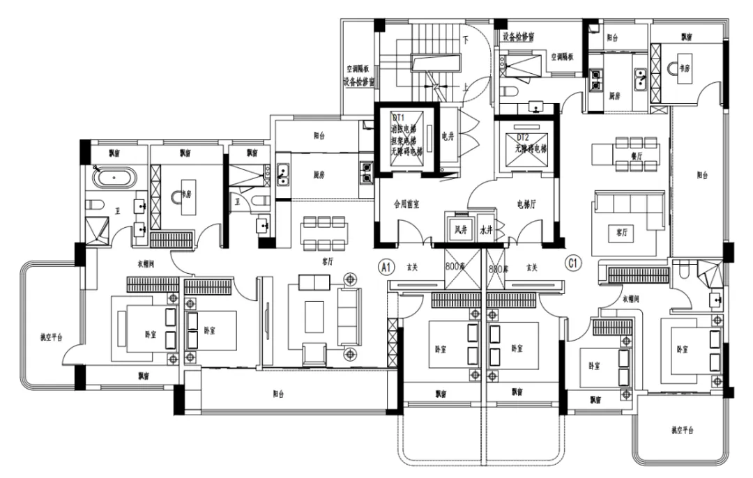
北谷翰文府:鼓楼北小而精,教育配套双王牌
鼓楼北的主城价值无需赘述;
北谷翰文府以“小而精”的定位,成为板块稀缺的纯改善精品;
而教育+配套的双王牌,让它从一众新盘中脱颖而出。
项目体量不大,仅2栋16-17层小高层,共60套房源,135-155㎡的主力户型,纯粹的改善定位让社区圈层更加统一。

外立面大面积使用石材、铝板搭配全景玻璃,高窗墙比让采光和视野俱佳,主城小高层的居住体验尽显。
目前项目网传流出135/155㎡户型的楼栋分布,可以做个参考(具体以开发商公示为准)
1号楼户型为:155㎡A1(左)+135㎡C1(右)
2号楼户型为:155㎡(左)+135㎡(右)
项目最核心的优势在于配套:
西侧一路之隔就是金陵汇文学校,教育资源得天独厚;
交通上,距在建地铁9号线江东门站不到800米,规划13号线乐山路站约700米,双地铁加持;
商业上,河西吾悦广场、万达广场等环伺,生活便利度拉满。
主城核心的地段+硬核的配套,让这个盘成为鼓楼北改善的稀缺之选。
江北核心区
江景奢配双王牌,重构核中核人居标准
江北核心区一直是南京楼市的热门板块,
2026年金陵江月与江北建投&中建东孚G07两大新盘登场,
一个以绿城操盘的奢配打造森境人居,
一个以国企央企联手的江景墅厅打造观江新势力,
二者各有明确入市节点,共同重构了江北核中核的人居品质标准。
金陵江月
绿城操盘,打造江北森境奢宅
通宇与绿城联手打造的金陵江月,凭借绿城的高端操盘能力,成为江北核中核品质改善的新锚点,也让江北的高端人居再上一个台阶。
项目预计2026年一季度开放展示空间并快速入市
后续还将重磅公开约1万㎡全维示范区、约2500㎡超大下沉式庭院、3大户型样板间以及首开4栋楼的4个架空层,产品展示动作值得期待。
项目容积率1.6,规划11栋11-16层小高层,对标杭州豪宅芝澜月华打造80米长、7.2米高的主大门,仪式感拉满。
外立面以“流江曲韵”为设计理念,融合超流体与江水波浪的意象,与项目近江的地理优势完美契合,窗墙比峰值达0.62,通透感与颜值兼具。
社区打造堪称南京罕见,约8000㎡的立体会所体系,包含下沉式景观庭院、室内会所、架空层泛会所;
还有南京首个270°环幕观景恒温泳池、全明生态地下车库、江北首个地库洗车房,奢配细节拉满。
依托地差优势打造的五重梯度中央景观,让建筑仿佛生长在森林之中,
128-235㎡的主力户型搭配少量瞰江大平层,重新定义了江北改善的品质上限。
江北建投&中建东孚G07:江核观江新势力
江北建投&中建东孚G07的核心优势,
在于国企+央企的双保障与一线江景的稀缺资源,成为江北核中核观江改善的新晋猛将,
项目预计2026 年三季度正式入市,目前暂无展厅开放、样板间公开、户型曝光等动态。
项目由江北建投与中建东孚联合开发,国企兜底+央企操盘,让项目的品质与交付更有保障。
规划9栋14-16层四代住宅,全楼栋首层架空,户户配置大露台,四代宅的产品优势尽显;
而最亮眼的设计,是直面长江的四栋楼打造的挑高墅厅,搭配超大露台,将江景与高端户型设计完美结合,让江景成为日常居住的一部分。
首排房源享有无遮挡的一线观江视野,墅厅户型面积或锁定160㎡以上,精准匹配高端观江改善需求,也将为江北核中核的江景改善市场,带来新的选择。
写在最后:
不难发现2026年南京楼市的人居逻辑已经发生改变,
告别了过去的概念炒作,转向了更务实的产品与价值比拼,三大新逻辑尤为明显:
无论是南部新城的1.2-1.8容积率,还是江北核心区的1.6容积率,高端新盘早已告别高密规划,洋房、叠墅成为主流,低密居住的舒适度成为核心追求;六恒科技、鸿蒙智家等智能化、舒适化系统普及,会所、架空层等公共空间的打造,也成为新盘的必争之地,甚至不少项目为了提升品质,还会对规划进行精细化调整;置业者越来越理性,不再为远期概念买单,南部新城的地铁、商业落地,中信G86的配套先行,让交付即享成熟生活的项目更受青睐,而各盘的入市节点也多贴合板块兑现节奏,板块兑现力成为衡量项目价值的重要标准。2026年的南京楼市,注定是产品力的竞技场。
对于客户而言,找准自身需求,结合板块兑现力与产品硬实力,
紧盯项目最新进展,才是 2026年的置业关键。
您更看好哪个纯新盘?关注私信,欢迎探讨!
免责声明:上述所有文字、图片、数据信息等仅供参考,不视为要约。户型图/墨线图所示结构、面积、空间、家具、电器、装修、装饰、设备、设施等仅为示意,具体选购房型可能因楼栋、楼层、单元不同,局部结构、面积等存在差异,实际交付标准以双方订立的商品房买卖合同及政府等相关部门的批准文件为准。