
在有情绪的空间容器里,品味着光线与自然,以设计唤醒感官,体验结构与艺术交融的意趣。


大理石茶几承托起闲趣与日常,柔软沙发是归心的落点,在这里,电视不再是视觉的中心,而是生活剧场的背景。




浅灰与暖棕的色调交织,如午后阳光般温柔包裹,让空间成为情绪的缓冲地带。






空间以流畅的动线,将中岛、餐桌与天光串联成日常的叙事。大理石的冷冽与木色的温润对话,弧形门洞柔化了线条的锐利,让功能与美学在此共生。



在自然的晕染下,用餐的仪式感愈发浓厚,让家人相聚的时光温馨四溢。



当光线在大理石地面上流淌,空间的叙事便从这一方玄关悄然展开。




穹顶如一轮温柔的月,将光线与思绪轻轻收拢,圆弧形的天花线条,与地面的圆形地毯遥相呼应,让整个空间成为一个被温柔包裹的场域。



身心与设计同频共振,让居者于此安放身心,拥抱生活的温柔回响。



晨花清浅,午后影长,轻风穿庭而过,拂过明净的书房墙面,思绪悄然生长。翻阅、静听,我们静坐不语,时光已然温柔。


穹顶之上,一方天井,是天空写给人间的情书。阳光与云影在此低语缠绵,归家的人,不妨在长椅上稍作停留,静享这份温柔。



黑色楼梯,慵懒、随性,又自带神秘。材质的厚重与线条的轻盈共生,每一次转身,都像是从日常走向诗意的过渡。




蓝与白的交织,如晴空与云朵的私语,为童年铺就一片澄澈天地,柔软床品包裹着每一夜的安心梦境。


在这里,收纳与秩序悄然融入设计,让成长的每一步都自在从容。





少年的书桌上没有虚度的光阴,悠悠拨动梦想启航的琴弦,伴他在人生的漫漫征途上,绽放出属于自己的璀璨光芒。


斜顶之下,光的轨迹被温柔勾勒,木色与浅白交织出松弛的底色。软包床头如云朵般包裹身心,让每一次归卧都成为与自我的温柔相拥。




不规则的镜边如自然的笔触,将光线温柔包裹,一圈暖光漫过石面,把清晨的洗漱,都酿成一场与自我的温柔对话。


无需刻意营造,办公与休憩的边界在此自然消融。指尖划过书页,目光远眺城景,在光影流转的静谧里,将城市天际线,框成流动的风景。





归家的仪式,从这一方天地开始,圆形穹顶如一轮皓月,将柔和光晕倾泻而下,包裹着每一次归来与启程。





△-1F平面图

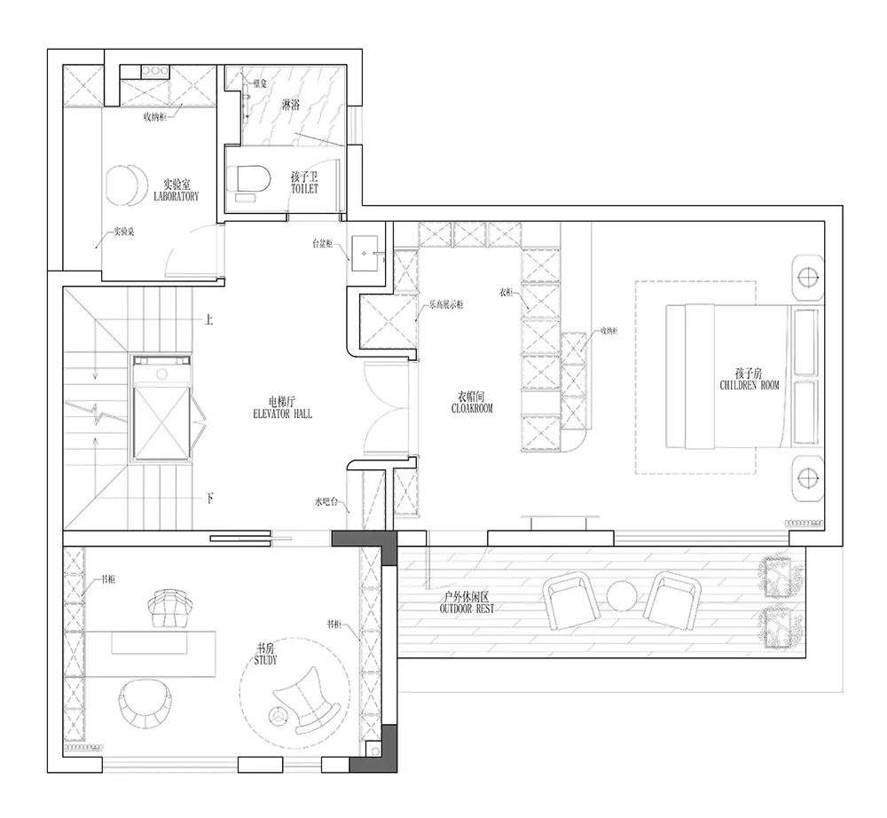
△1F平面图

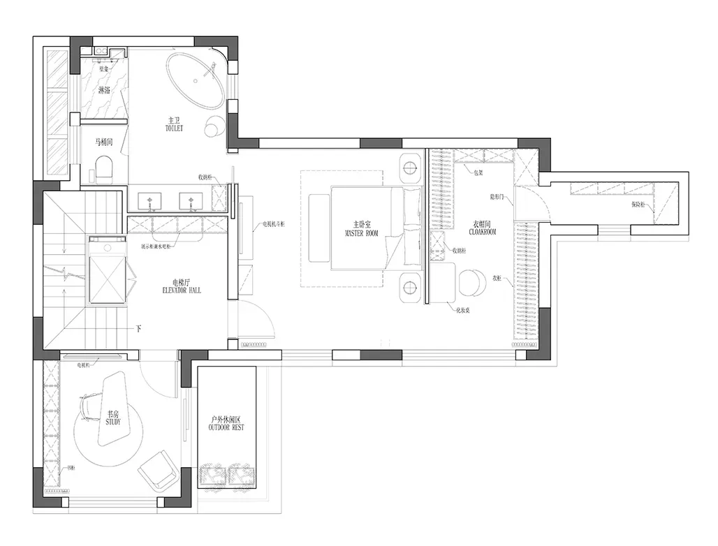
△2F平面图

△3F平面图
项目地点:江苏 南京
室内面积:536㎡
项目设计:观享际SKH室内设计
项目施工:观享际SKH室内设计
项目软装:观享际SKH室内设计
空间摄影:丛林

就说上海这套168㎡的房子吧,设计的时候主要考虑的就是住着舒不舒服。设计师按照“简单、通透、动静相宜”的原则来规划空间,在简约的审美风格里,把艺术感和实用性平衡得刚刚好,让住的人能过得既理性又自在。

一进家门,玄关那儿的氛围就先给你个下马威 —— 不过别担心,是那种温馨又内敛的下马威。深色的木头装饰,配上柔和的暖光,让过渡区域不那么生硬,回家的感觉特别温和。还有那通顶的储物柜,藏得严严实实,一点不显得笨重,反而让墙面看起来更整洁,整体感觉特别舒服。
As soon as you enter the home, the foyer sets an impressive tone—though don’t worry, it’s warm and understated. Dark wood decor paired with soft warm light softens the transition zone, making coming home feel gentle and welcoming. The floor-to-ceiling storage cabinets are fully concealed, appearing light rather than bulky, leaving the walls neat and the overall space comfortable.


客厅的设计嘛,主要是在材料、光线和空间感上下功夫。没有大吊灯,而是用各种层次的灯光,配上自然材质的墙面,营造出一种放松又安静的环境。颜色也不花哨,低饱和度的色调让空间看起来更宽敞,公共区域活动起来也更自在。
The living room design focuses on materials, lighting, and spatial perception. Instead of a large chandelier, layered lighting combined with natural-textured walls creates a relaxed and quiet atmosphere. The color palette is simple and unassuming; low-saturation tones make the space feel more spacious and the public area more comfortable to move around in.


阳台那儿原本的大落地窗,现在改成了开放式小茶室,这样一来,空间利用得更充分,视野也更开阔了。阳光透过窗户洒在茶 桌上,地上也斑斑驳驳的,在这儿坐坐,放松放松,生活的节奏都跟着慢下来了。
The original large floor-to-ceiling windows on the balcony have been transformed into an open small tea room, making fuller use of the space and broadening the view. Sunlight streams through the windows onto the tea table, casting dappled patterns on the floor. Sitting here and unwinding slows down the pace of life.


餐厨那块儿还是用了木饰面,灯光一打,吃饭的氛围就变得既温馨又稳定。那些高高低低的家居摆件,看着就让人觉得有节奏感,空间也显得更有层次,还多了几分轻松自在。木头的餐椅配上洞石装饰的墙面,材质一对比,眼睛一下子就有了落脚点,每天吃饭都感觉特别有格调。
The dining and kitchen area also features wood veneer; when lit, it creates a warm and steady dining atmosphere. The tall and short home decorations add a sense of rhythm, enriching the layers of the space and bringing a casual vibe. Wooden dining chairs paired with travertine walls create a pleasing material contrast, giving the eye a comfortable focal point and making every meal feel elegant.






卧室的设计呢,就是深挖 “普通空间” 的潜力,装饰啥的都不太看重,主要就讲究个秩序、比例和舒服劲儿。用简单的设计来满足住户心里的需求,给快节奏的生活找个安静又稳定的歇脚地儿。每个小细节都是为了让住户能放松、能平衡,打造出一个真正适合长期居住的私人小天地。
The bedroom design maximizes the potential of an ordinary space, paying little attention to excessive decor, focusing instead on order, proportion, and comfort. Simple design meets the residents’ inner needs, providing a quiet and stable retreat from fast-paced life. Every small detail is designed to help residents relax and find balance, creating a genuine private sanctuary suitable for long-term living.







简奢度假别墅
-
三月伊始,
度假的最佳窗口期已然开启。
与其在旅途中舟车劳顿,
不如躲进一家高颜值的度假酒店,
给心灵放个假。
这里不仅有绝美的景观,
更有丰富的玩法等你来解锁。
通过巧妙的动线设计,
每一次空间转换都是一场全新的探索。
哪怕只是“宅”在酒店里,
也能发现层出不穷的新意,
享受不出城的精致“微度假”。
今天带大家参观的是一座堪称完美的度假豪宅,身处这个几乎没有任何“禁锢”的开放空间里,你才能真正地放松下来。让我们直观地感受一下,那种不被定义、随心所欲的生活,究竟该有多大的排面和尺度!
赋予别墅以家的精神内核,首要任务在于极致诠释自由的概念。本案以通透的动线为空间主轴,将各个功能区有机串联,构建出丰富多变的松弛空间形态,进而激发出不同区域间充满惊喜的互动体验。

通过充分释放“横向空间”的价值,设计师构建了独特的空间秩序。在适当的留白处理下,灰色真皮沙发与复古壁炉实现了无缝衔接,这种设计有效地增强了空间的流动感,营造出层层递进的迂回与深远意境。

当木色与灰色邂逅,交织出一抹温柔的触感。在冷静且克制的氛围烘托下,空间内的各个区域自由舒展,用一种毫不费力的松弛感,拥抱生活的万千模样。设计既有大气的格局,又有细腻的铺垫,它清晰地勾勒出功能轮廓,也留下了随性漫游的自由,让人在每一处转角,都心甘情愿地停下脚步。

自背景向内延伸,设计师以功能为笔触,细细勾勒出空间的轮廓。视线落点处,开放式吧台打破了界限,无论是慵懒地饮上一杯,还是享受静谧的一人食时光,皆在此处成为可能。

侧翼设置的下沉式休憩区,凭借其弧线轮廓寄托了团圆美好的愿景。落地窗的存在让视野变得敞亮大气,借助动线的巧妙安排,这里既与自然相拥,又与居家生活深度对话。这种内外对视的格局,恰恰体现了设计理念中的一种自我观照与内省精神。



旋转楼梯宛如舞者般完成了一次优雅的转身,它不仅是通往上层空间的纽带,更预示着新格局的诞生。设计师巧妙地将空间化作一股流动的液体,却在流淌间保留着骨骼般的棱角,所经之处,温柔如影随形。中性色调仿佛一条飘逸的丝带,在空间中蜿蜒,勾勒出层层叠叠的淡雅韵律。


尽管空间层次分明,却并未给生活方式设限;设计的波澜让居家体验充满了动态之美。居住者在此间随兴驻足、漫步,这种节奏与度假般的闲适不谋而合,也体现了家无所不包的特质。在那些静谧的时光里,每一次与居所的相伴,都显得格外意味深长。

得益于天窗的开启与细腻的镂空设计,光线得以穿透屋顶,化作空间的灵魂画师。它以灵动的笔触在室内游走,为原本静止的角落注入了盎然的诗意与灵气。


当卧室空间被赋予原木的主色调,一种温润醇厚的质感便随之缓缓释放。这种美感不局限于视觉的舒适,更具有一种向内探索的张力,它不断触碰着居住者的内心,敦促人们在快节奏的生活中学会驻足,重拾静止与放松的时刻。

木质带来的不仅是禅意的幽深,更是日式哲学中那份轻盈的生活态度,它温柔地渗透进日常的缝隙里,让我们不再需要任何苍白的道理来规训生活。毕竟环境最能潜移默化地改变人,身临其境之中,你自然懂得如何与周遭万物温柔相待,你会发现,这方空间仿佛也拥有了灵性,懂得顺应你的性情而生长。


借由半墙结构,卧室与起居室实现了软性分离,但色调的一致性让视感并未受阻,反而向着四周延伸,令两个独立空间在无形中贯通一气。为了消解单一色系可能产生的沉闷与粘稠感,设计者特意引入了室外豁达的景致,这让整个空间在感性的氛围中,依然保持着一份难得的克制与高雅。

这处室内泳池并非仅仅是一处设施,它通过极简的设计语言,将硬朗的轮廓包裹在柔和的质感之中,从而散发出一种静谧、优雅且不失格调的空间气场。


该地下区域借鉴了谷仓的造型语言,通过穹顶般的弧线设计营造出强烈的包裹感,突出了使用者对私密空间的独占欲。这种封闭性并未阻隔体验的多样性,雪茄吧与酒水吧遥相呼应,特别是那款嵌入式酒柜,其线条与空间的圆形流转之势相得益彰。


回首驻足于室外天地,这一方天地早已超越了普通庭院的范畴,为居者勾勒出触手可及的假日常态。



并没有采用复杂的造型,而是让水景和草坪呈现出层层推进的视觉效果,那条看似简单的路面实则暗含引导之意。随着脚步在曲折中探索,景观的治愈气息扑面而来,而这一圈漫游的终点,终究是指向室内。在近距离的感知与远距离的眺望交替中,心也随之安定。



空间动线不再局限于身体在现实层面的穿梭,而是升华为一种精神层面的永恒印记。



该空间将度假的概念从“向外求索”转变为“向内观照”,呈现出一种新颖的表达方式。依托高度整合的美学设计,居住者获得了充分的行动自由,进而能够自主地去发现和感受。此时,度假不再意味着传统的奔波,而是内心的宁静与思考。别墅内动静场景的无缝切换,营造出了一种非同凡响的沉浸式度假氛围。


置身于这座度假别墅之中,你的内心激荡起了怎样的涟漪?
精彩 · 回顾
2025温德姆花园酒店品牌概述与设计参考文件
2025温德姆酒店2025设计标准手册

WJID维几新作 | “园中园、院中院”东方隐奢之所 一 北京隅 · 东序


合作/投稿 微信:AnLe010

投稿邮箱 :lizicheng66@qq.com
欢迎大家将火车头设计设为‘星标’公众号
第一时间接收高端设计精选内容
👇点击阅读原文,查看更多最新设计素材!