
▲ 核心组团东南向航拍图 ©时差影像
NO.1
项目概况
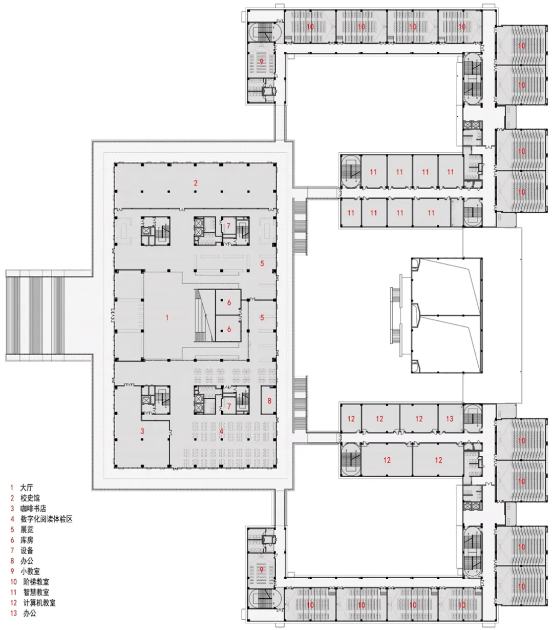
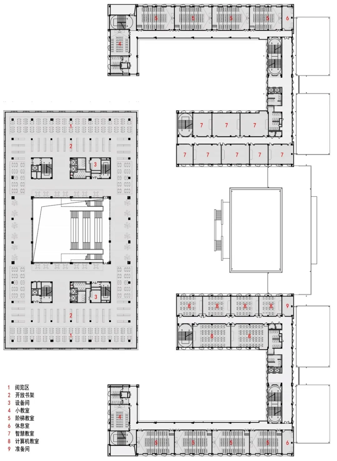
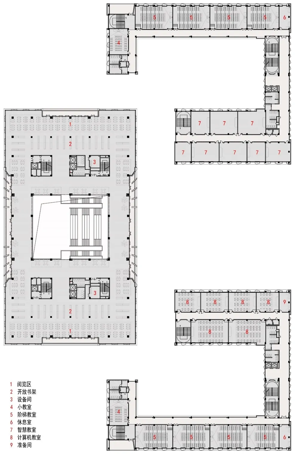
南京财经大学红山学院高淳校区位于高淳区石臼湖畔,向西距离团结圩地铁站约500米,向北距离石臼湖2公里,向东毗邻石固河。总用地面积约960亩,建筑面积89万平方米,其中一期33万平方米已经建成。校园核心组团于一期建成,包括图书馆和公教楼,项目总建筑面积为6.2万平方米,其中图书馆建筑面积约为3.4万平方米,涵盖图书阅览、自习室、学习中心等主要功能区;公教楼分为南北对称两栋,建筑面积约为2.8万平方米,主要功能有普通教室、合班教室和报告厅等。


▲ 东向主入口建筑群形象 ©时差影像
NO.2
布局策略:
化解形体关系,兼顾南北朝向及东西轴线
在总体规划层面,我们将图书馆和公教楼的主入口分别设置为西向和东向,并为实现建筑良好的南北朝向而展开了一系列布局策略:针对图书馆,将南北向较长的体量分为南区和北区,并在中间部位设置中庭,这样分解后的体量,在南北区均呈现东西长的南北朝向,巧妙地将南北长的体量化解为东西长的功能区,并在中庭部位朝西自然形成图书馆主入口;针对教学楼,将较大的体量分解为两个以南北向为主的U字形体量,并沿图书馆中轴线南北对称布局,在两个体量之间于中轴线之上朝东自然设置公教楼主入口大厅。


▲ 建筑群东北向航拍图 ©时差影像

▲ 由二层平台看内院 ©时差影像

▲ 错落有致的群体关系 ©时差影像
NO.3
标志性策略:
主体建筑的特征营造
图书馆主立面将书本意向与中国传统格栅窗进行有机融合,以“知识之窗”的概念塑造兼具东方意蕴的建筑形象,红色的陶土板和蓝色的玻璃形成鲜明对比,给人以深刻印象,使人过目难忘,呼应了图书馆作为校园核心建筑的主体地位,强化了其标志性。

▲ 特征鲜明的图书馆主立面 ©时差影像
另外,设计通过烘托手法突出图书馆的主体形象,一方面建筑群以错落有致、主次有序的群体关系营造大气磅礴的主体建筑气势,对称布局的公教楼烘托了体量高大的图书馆;另一方面,图书馆采用幕墙体系,以整个校园外饰面中最高档的陶板、玻璃幕墙和金属板进行组合塑造建筑,与以饰面砂浆为主的校园其他建筑拉开差距,突出其作为主体建筑的气质。

▲ 南北公教楼居于两侧,图书馆居于中心的

▲ 内院视角看图书馆和公教楼 ©时差影像

▲ 图书馆南立面局部视角 ©时差影像

▲ 图书馆剖透视图 ©东大院
NO.4
传承策略:
老校园文脉+高淳地域性=本校园的唯一性
红山学院的老校园——桥头校区为1910年建设的中华三育社旧址,现存一批镇江市文保建筑,保存良好,特征鲜明,其典型特征为三段式立面、红砖外墙、质朴实用;新校园所在地高淳的传统建筑具有典型的江南地域特征,呈现出白墙灰瓦、尺度宜人、清新雅致的鲜明特色。设计传承桥头校区文保建筑的特征和高淳本地的地域性建筑特征,并将二者有机融合,塑造出属于红山学院且属于高淳的唯一性特征,呈现出红砖记忆、白墙灰檐的三段式建筑形象。


▲ 红色陶砖与白色遮阳板构成图书馆立面肌理 ©时差影像
NO.5
低碳策略
》自然通风与采光
建筑群均通过开启扇做自然通风,并在图书馆结合中庭设置天窗,有利于夏季利用通高空间进行自然拔风,促进室内外冷热气流交换,改善室内环境,使建筑在夏初及夏末在不开空调的情况下具备良好的气温,同时建筑沿四周阅览区设置足够的采光面,尽量缩减人工照明成本。

▲ 图书馆自然通风 ©东大院

▲ 图书馆标准层休息区 ©时差影像

▲ 自然采光的图书馆二楼大厅 ©时差影像

▲ 图书馆阅览区的自然通风与采光效果 ©时差影像

▲ 图书馆大厅天窗 ©时差影像

▲ 公教楼报告厅内景 ©时差影像
》立体表皮
建筑群均通过立体表皮进行被动式遮阳,其中图书馆外表皮采用外挑600宽的穿孔铝板,并在竖向均匀布局,形成了图书馆立面的主要建筑语言,公教楼立面采用内退600做采光窗,并通过穿孔铝板结合空调室外机达到富有韵律的立面效果。

▲ 图书馆被动式外遮阳穿孔铝板 ©时差影像

▲ 公教楼及图书馆立体表皮 ©时差影像

▲ 公教楼南向局部视角 ©时差影像
》持久稳定的材料
建筑的品质对使用体验而言是至关重要的,其中建筑材料性能的稳定性尤为重要,尤其是对于校园的后期维护。经过与学校基建部门的沟通,为减少校园建成后的维修频率,我们深入研究图书馆的用材,采用稳定性较好的陶土板、陶砖以及金属和玻璃幕墙体系,确保其建筑品质的持久稳定。

为主材的图书馆 ©时差影像

▲ 镂空陶砖建构的图书馆基座 ©时差影像

▲ 图书馆南向露台 ©时差影像
NO.6
造价策略:
点面结合,突出重点
尽管整体投入有限,但也要确保建成后的校园品质,因此我们在总体规划层面采取了 “点面结合、突出重点”的造价策略:以相对便宜的饰面砂浆覆盖量大面广的生活区和教学区,以相对贵的材料重点打造核心建筑(如图书馆、体育馆等),从而在有效降低整体造价的同时保持了校园的亮点。最终,一期建成区包括内装和景观在内的平均建安成本控制在了单价3500元之内,其中,图书馆以陶土板、陶砖、铝板和玻璃幕墙等材料保证了其作为校园主体建筑的品质,公教楼则在一层近人高度采用陶砖贴面,在保护墙体的同时提升了观感效果。

▲ 建筑群南向局部视角 ©时差影像

▲ 内院北向视角 ©时差影像

▲ 公教楼局部视角 ©时差影像

▲ 图书馆阅览区简约经济的室内装修 ©时差影像
NO.7
结语
核心组团以大气磅礴的群体关系呼应校园空间结构,以有机融合的方式兼具“知识之窗”的概念和中国传统韵味,以红砖记忆和白墙灰檐传承校园文脉和地域文化,以自然采光与通风、立体表皮和材料的持久性营造低碳高效的使用体验,以点面结合的方式突出重点,是一座以长久实用为导向且兼顾经济性的建筑群。
· 技术图纸 ·









▲ 图书馆2-2剖面图 ©东大院


▲ 图书馆东立面图 ©东大院

▲ 图书馆南立面图 ©东大院

▲ 图书馆南立面图 ©东大院

项目信息
项目名称:南京财经大学红山学院高淳校区核心组团
项目地点:南京市高淳区
设计单位:东南大学建筑设计研究院有限公司
建筑面积:约6.2万平方米
项目负责人:钱锋
方案创作:钱锋、邵如意
设计团队:
建筑专业:邵如意、孙铭泽、张航
结构专业:朱筱俊、蒋剑锋、狄蓉蓉
给排水专业:孙毅、李斯源、韩治成
电气专业:范大勇、李响、钱锋
暖通专业:陈俊、闫凌、张馨月、顾奇峰
智能专业:李骥、夏磊、章敏婕
室内专业:何宏志、宋大军、陈建兰、李如佳
景观专业:唐小简、许扬、张小艳、周宇坤、李佳慧、黄河、王泽
绿建专业:丁迎春
摄影版权:时差影像
供稿单位:东南大学建筑设计研究院有限公司
公众号内容仅供交流学习使用,版权归原作者所有。 如发生权属不清导致的侵权,请联系我们删除。 | 近期活动 | 全媒体展示平台 | 更多信息 官方网址 | www.atd.com.cn
杂志订阅 | https://www.ytsjk.cn/store/s-2007
010-88375434(订阅)/57368807(物流)
商务合作 | 010-57368776/1371656990