"
一座金陵城
如何在此地诗意地栖居
“天连水,水连天,秋来更觉云天远。吴山点点愁云卷,钟山隐隐苍烟绕。”
金陵,这里的每一座建筑,都是历史的见证者,文化的传承者,它们以独特的姿态,诠释着南京这座城市的灵魂与气质。
这是有一个关于美学精神和生活哲学的动态叙事,建筑只是保留情感和引发共鸣的媒介,更重要的是创造一个立体的视角找到一座城中的意象和价值。
本文将通过四个项目,走向金陵建筑。
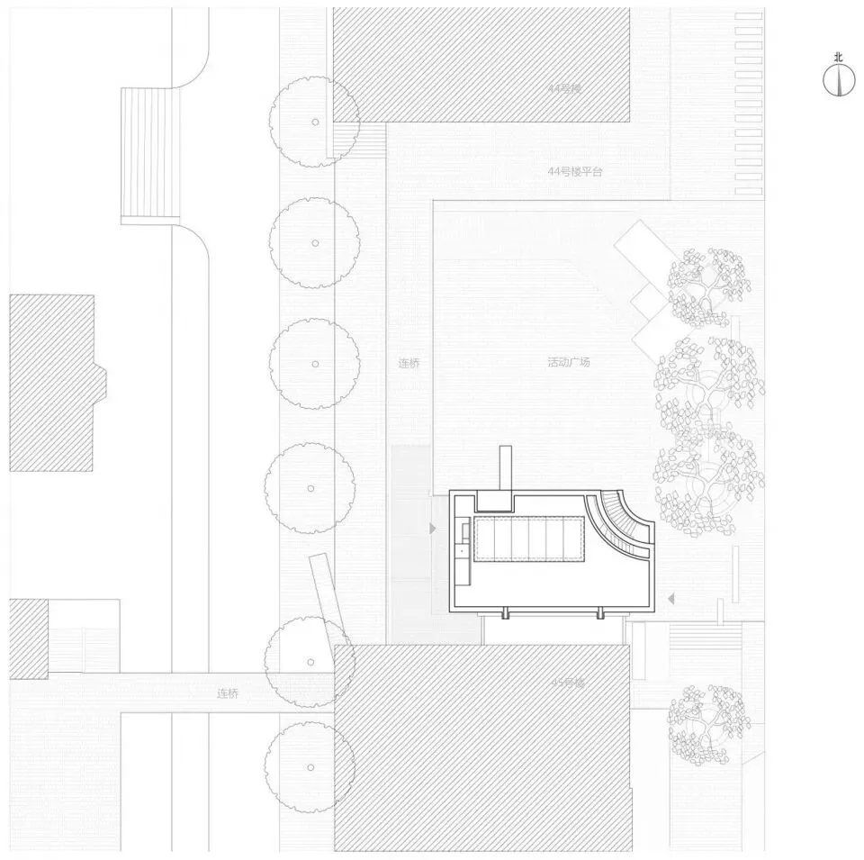
01
南京艺术学院——砼展厅
▲鸟瞰
展厅位于南京艺术学院46号宿舍楼前,这一片空地是学生日常生活的热闹地带,蕴藏着艺术与社区式交流的契机。
而建筑小品样态的展厅连接了广场和宿舍楼的人群,是公共与私密之间的过渡,让这个学生空间更为开放,提供了一个类似于社区共享客厅的空间。

▲立面
展厅的上下两层分别是“古油画修复展厅”和“古瓷片研究展厅”,一中一西,要求在空间上做出较为明确的区分,因此由拱形元素结合视线和空间的要求形成了最终形态。
砼展厅就像是一个在指尖折叠而成的艺术盒子,每一次弯折和变化都有其内在的适应性。
内外双拱的设计,增强了人在室内的包裹感和安全感,这种拱形的逻辑也延伸到二层的室外平台,在有限的空间中挤压出一个供人休息冥想的空间。
▲营造逻辑
一二层之间的旋转楼梯富有变化和趣味,设计者为它专门留出了顶部天窗用于采光,利用拱形的弧度将光线自然导入,在满足室内采光的同时也凸显了混凝土质感。
混凝土、玻璃砖和混凝土与木板拼合而成的模板浇筑,形成一种类似笔触的独特质感,三种材质在光线的映衬下突显了展厅的艺术气质。
▲旋转楼梯
在建筑拱顶处延伸出了二层平台,并与宿舍空间相贯通,通过展厅的延伸实现宿舍与校园间的自由穿梭。
为避让院子里的香樟,建筑临街的一角做了退让,通过楼梯让建筑形态的一角富有变化。
架设的锈钢板楼梯斜搭在二层连廊上,联系了首层广场与二层平台,从树木中露出一截,成为区别于展厅外部整体风格的装饰。
▲角部
▲楼梯与建筑
在混凝土拱下包含着对艺术的理解和公共空间的重塑,以一种大的拱形结构作为建筑小品的元素,展现了艺术与传统的平和素淡的共通气质。
从砼展厅的设置能够明确学校有意将这片空间作为“创意街区”的生活区进行营造。
在场地宿舍楼北向是面对楼群间的一个小广场,西侧是一条校内步行街,有咖啡厅、书吧各种创意小店及艺术装置。
▲总平面图
▲剖面图
建筑小品的排布与设计更为关注人的尺度和感受,通过空间节制和手法节制的方式达到一种简单而纯粹的空间关系和艺术效果。
建筑师将平直线条与拱形元素巧妙融合,形成在校园开放空间中的独特一隅。
02
南京鼓楼锦上OCC餐厅

▲从花园望向建筑
锦上OCC餐厅位于城市街心公园之后,在树木掩映之中,仿佛从步入这片绿地开始就能带你体会不一样的禅境。
身后大城市的喧闹与琐碎从此刻起与你无关,只需约上三五好友体验这份把酒言欢的快意与自在。
餐厅与鼓楼隔街相对,在树木掩映中仍然保留着这份历史积淀与厚重,跨越街道的车水马龙与紫峰大厦对视,又是另一层的城市温度。

▲建筑与鼓楼对望

▲平面关系
锦上OCC是一个针对餐饮空间的建筑改造及室内设计项目,力求将场地周围的人文要素、社会要素吸引进场地内,在某种意义上重新定义了餐饮空间。
建筑立面由扭转拼接的陶板和大面积的玻璃窗组合,并将片段化的立面再进一步像素化,这种“散点叙事”的特征再现了中国传统园林的意象。

▲入口
入口处的台阶一方面解决了场地和建筑间的高差问题,同时有效地将人流引入餐厅内部。
通高的公共空间增强了门厅的空间感,保持了对外开放的一致性态度,使得原有被压抑的层高得到释放,在一定程度上消解了立面横向过长的延伸感。

▲通高空间

▲室内与室外
因此建筑在室内外,甚至室内各个功能区域之间都有意将视线边界消除,而更多的开放就意味着更多的机会。
锦上OCC餐厅也正是以这样的视角和态度打造的。墙体的转折以假山的形式在景观中出现,在视线上形成了多种层次,造就了全新的立面形式和空间体验。

▲入口处台阶
景观由室内渗透到室外,利用片墙将院子景观分隔,将室内所用的材质沿用到室外,把现有的树木和场地氛围一并带入到建筑立面甚至室内的范畴之内。
在丰富的景观元素之下,室内的每个餐桌都像是一个个岛屿,让食客感受到一种独特的归属感。

▲用餐空间
锦上OCC的出现形成了一种城市人文会客厅的空间,它不只是餐厅,更是在鼓楼旁传统与现代交融的新地标,重现了一种以人文情怀为中心的南京风貌。
这种感受存在于每一个营造体系内,去创造一种更完整的叙事结构,尽可能激发更多不同内容之间的互动。

▲首层平面图

▲剖面图
锦上OCC的品牌故事告诉我们:餐饮不仅是提供食物和服务,而是提供连接与赋予意义。
最高级的品牌策略,或许不是告诉消费者“我有什么”,而是让他们通过你,看见自己“可以成为谁”。
03
南京湾艺术中心
▲街景
▲细部
南京湾艺术中心位于南京河西新城最南端,意在把这里打造为集商务示范区和高端时尚艺术展览的聚集地,而艺术中心作为先锋,以一种城市新客厅的样态呈现在人们面前。
建筑造型尤为轻盈,通过扭转的方式翻转折墙,这种看似简单的形体操作为建筑立面提供了更多层次的机会。
建筑空间形态与建筑造型相统一,在造型舒展的部分充分容纳人的活动,扭转部分则暗示着空间的变化与转变。
▲概念生成
建筑周围的水池景观增强了建筑造型的独特美感,漫步其中仿佛身处于山石之中。
自然光打在扭转的不锈钢饰板上承载了建筑的美学特征,这是中式的美学传承,也是对诗画中山水意象的具象展现。
景观庭院位于艺术中心的北侧,这片建筑与景观共同形成的山水协奏,与背后的南京城的城市风光形成一种别样味道。
▲景观
建筑入口处的雨棚与整体造型浑然一体,以更为感性化的样态迎接来客,充满未来感。
建筑内部也沿用了这种“翻折、扭转”的概念,在两层通高空间的展厅部分,实现了多个线性维度的翻折,配合顶部天窗和侧向高窗,塑造了流畅而柔和的空间体验。
游客来到艺术中心二层,向东穿过一条廊桥便可享受到立于“船头”的风景,秦淮河对岸的画卷徐徐展开。
▲“船头”
▲室内与室外
建筑外部表皮采用3mm厚不锈钢板,内部表面采用灰色质感涂料与浅色原木。
室内公共楼梯部分采用木质曲面设计,融合了建筑整体扭转的空间气质,同时也为室内单一的白色提供了相对自然的配色。
设计者没有使用过多色彩,而是选择通过材质本身与光线的变化呈现建筑的魅力,这是一种“由外而内”的流动空间气韵,轻盈而动人。
▲公共楼梯
建筑的主体为钢结构+剪力墙体系,这种马鞍形曲面为建筑结构提供了有力的形体支持。
建筑师在曲面上提取了一系列的分形直线,并由此生成一系列钢结构空间桁架,它们以大跨度的方式承受建筑荷载并实现了展览空间中对无柱的要求。
▲总平面图
▲透视图
秦淮河畔,这组建筑以其独特的扭转与舒展之姿,化作一艘静泊待发的未来之舟,横卧于秦淮河畔。
它既收藏了桨声灯影里的岁月,也勾勒出属于这座城市的美好远景。
04
南京时代天樾都会美学中心
▲立面局部
项目位于南京江宁区的城市公园中,方案以简洁纯粹的形态呈现在绿植之中,建筑面前留有景观水池。
白色的方盒子漂浮在水面之上,缓解了周围环境的干扰,以一种极具体量感的造型呈现在树荫之中。
▲顶部天光
光影在建筑盒子中闪烁变化,正如建筑大师路易斯康所说,“自然界中的所有物质,山脉,溪流和空气,包括我们都是由光所构成的。光是物质的制造者,物质的目的是投下阴影,而影子属于光。”
光影在建筑中形成自然的舞台,创造了公共而独特的光影空间,它不是在某一空间单独展示,而是伴随着人参观路径的全流程。
光与影将空间不断地雕刻、延伸,赋予空间动态的序列感和静谧的个性。
▲立面
设计师选用高透玻璃、超白U型玻璃、石材及铝板覆盖建筑外观,分为三种视觉层次:透明、半透明和实体。
首层立面采用透明玻璃幕墙,意在消隐建筑体量,模糊室内外边界,以一种向外展示开放的姿态吸引人流。
U型玻璃只负责将光引入建筑内部,而不提供视线上的交流。半透明的温润光线质感突出了材质美学,展现出优雅的艺术气质。
▲爆炸分析图
建筑室内的公共区域以极具雕塑感的旋转楼梯形成主要视觉焦点,通过盘旋的折角保持了建筑线条的一致性。
光无疑是这座建筑的内在灵魂,建筑师在室内设计了光之接待厅、光之展示区、光之休闲区三种光空间。
▲旋转楼梯
顶部的天光、侧向的光影共同构成了光线的协奏,建筑引入自然光作为表达建筑空间和材质的媒介,追寻艺术意象的诗意表达。
折线型的外廊让人们对不经意间到达的空间充满期待,设计师利用借景和移步异景的手法将精心排布过的场景一一展现在游览者面前。
▲连廊与建筑
伦佐·皮亚诺说:"光不仅有强度,还有振动,它能使光滑的材料变得粗糙,给平面以三维的质感"。
白色铝板和浅灰色石材将建筑赋予更为严肃安静的时光感,形成了一种独特光影和材质的美学。
▲场地
▲剖面图
希望这个在喧嚣闹市中的白盒子可以唤起人们对生活意义的追寻。
光是这座建筑的讲述者,引导人们在光与影之间穿梭,体会空间的转折变化,细品时间与空间的连结,以一种体验型的方式走进美学生活。
一座金陵城是关于"如何在此地诗意地栖居"的探索,我们在建筑中感悟那六朝烟火气的从容,它们在历史的土壤中生长出当代艺术的锋芒。
一座城市的温度不是由建筑的高度衡量的,而是哪些部分真正服务于人,从饮食哲学到艺术美学,建筑包含了人们对精神生活的期待。
那些建筑里书卷气的灵动与温暖暗藏匠心,更永存于时间与空间的平衡。
1.https://www.gooood.cn/art-gallery-extension-of-nanjing-university-of-the-arts-china-by-atelier-diameter.htm2.https://www.gooood.cn/jinshang-occ-restaurant-by-buzz-buro-ziyu-zhuang.htm3.https://www.archdaily.cn/cn/990371/nan-jing-wan-yi-zhu-zhong-xin-studio-link-arc4.https://www.archdaily.cn/cn/909288/nan-jing-shi-dai-tian-yue-du-hui-mei-xue-zhong-xin-nan-jing-tian-hua编辑 | 廖文铎
责编 | 陈 诺