当前位置:首页>南京>南京市毗卢寺、李公祠两地点六朝建康城相关遗迹的发掘与认识

南京市毗卢寺、李公祠两地点六朝建康城相关遗迹的发掘与认识

  • 2026-04-17 05:17:47
南京市毗卢寺、李公祠两地点六朝建康城相关遗迹的发掘与认识

南京市考古研究院

内容提要:

2017年9月—2018年7月,南京市考古研究院对毗卢寺和李公祠两处地点进行了考古发掘。发掘清理出六朝至明清时期的灰沟、包砖墙、灰坑、房址等遗迹共计三十余处,出土陶、瓷、铜、石等各类质地文物共计六十余件。河道(灰沟)、包砖墙遗迹是六朝建康城市空间的重要标尺,为六朝

建康城的复原和研究提供了新的基础资料。

关键词:毗卢寺 李公祠 六朝 建康城 包砖城墙 河道

中图分类号:K878                    

文献标识码:A

      南京六朝建康城考古发掘与研究历来是南京城市考古工作的重点。南京属于典型的古今重叠型城市,六朝建康城考古发掘工作的开展步履维艰。近十年来,为配合城市基本建设,南京市考古研究院在六朝建康城核心区域的大行宫地区东部进行了诸多考古发掘,获得了许多与六朝建康城相关遗迹的考古资料,其中尤以毗卢寺、李公祠两处地点发现最为重要。

      2017年9月—2018年7月,南京市考古研究院先后对毗卢寺和李公祠两处遗址进行了考古发掘(图一)。这两处地点位于六朝建康城核心区大行宫地区东部,所在区域均位于南京市老城区,地块先后多次被重复利用,大部分遗迹被严重破坏。所幸的是,经仔细清理发掘,仍发现与六朝建康城相关的重要遗迹。本文将对这两处地点考古发掘遗迹作一介绍,并结合历史文献及以往建康城研究成果,谈谈对新发现遗迹的认识。

图一// 毗卢寺、李公祠两处遗址发掘位置示意图

      一、毗卢寺遗址

      毗卢寺遗址位于南京市玄武区汉府街。该项目为配合毗卢寺西侧鼓楼建设的考古发掘项目。南京毗卢寺建于清代光绪年间,时任两江总督曾国荃在两江总督府东捐资创建寺庙,因庙中供奉毗卢遮那佛,故名毗卢寺。民国时期,因中国佛教会、中国佛学研究会等先后设于此地,名声远扬,且有名人多相往来,如孙中山先生曾亲往静思,民国佛教领袖太虚法师也曾安单毗卢寺,毗卢寺遂为天下尽知。近年来,随着城市建设步伐的加快,毗卢寺周边的考古工作陆续开展。1999年,毗卢寺东侧汉府花苑出土六朝时期瓷器和瓦当。2008 年,毗卢寺西侧约 350 米处发现六朝建康城宫城东墙,现已在原址建六朝博物馆。2014年,毗卢寺西侧逸仙小学地块发现六朝时期河道。2017年9—11月,为配合南京毗卢寺扩建项目,经国家文物局批准,南京市考古研究院对毗卢寺西侧地块进行了发掘。本次发掘区域位于玄武区汉府街,西邻汉府新村,距大悲巷约90米;东邻汉府雅苑;北距雍园街约60米;南部紧邻汉府街,与新安大厦隔路相望。本次发掘共布 10×10米探方 5个,因受地形限制,未按正南北向布方,探方方向 20度。发掘面积500平方米。清理了灰沟、灰坑、房址等遗迹共21处。

    (一)地层堆积

      本次发掘对地层堆积作了统一划分,现以T3、T4东壁剖面为例予以说明(图二)

      ①层:近现代建筑堆积层。灰土,土质松散,包含大量混凝土块、红砖等建筑垃圾。厚 1~1.5米。出土零星青花瓷片等,覆盖整个发掘区。

      ②层:黄褐色黏土,土质较致密,包含零星石灰屑、碎砖瓦、红砖粒等。厚0.1~1.5米。出土少量青花瓷片等,覆盖整个发掘区。为明清时期地层。L1、F1—F4等遗迹被叠压于该层下。

      ③层:灰黄色土,土质松软,包含青瓷,青白瓷、砖瓦及陶器碎片等。厚 0.1~1.5 米。为宋元时期 地 层 。G1、H1—H13、F5 等 遗 迹 被 叠 压 于 该层下。

      该层下为浅黄色淤沙土,即生土层。

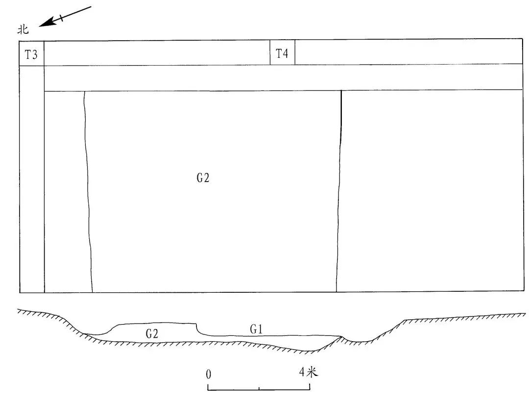
图二//   毗卢寺遗址 T3、T4 东壁剖面图

    (二)相关遗迹

      经发掘,毗卢寺遗址发现灰沟、灰坑、道路、房址等遗迹共计21处(图三)。涉及六朝建康城的遗迹有灰沟G2,其上叠压有G1。

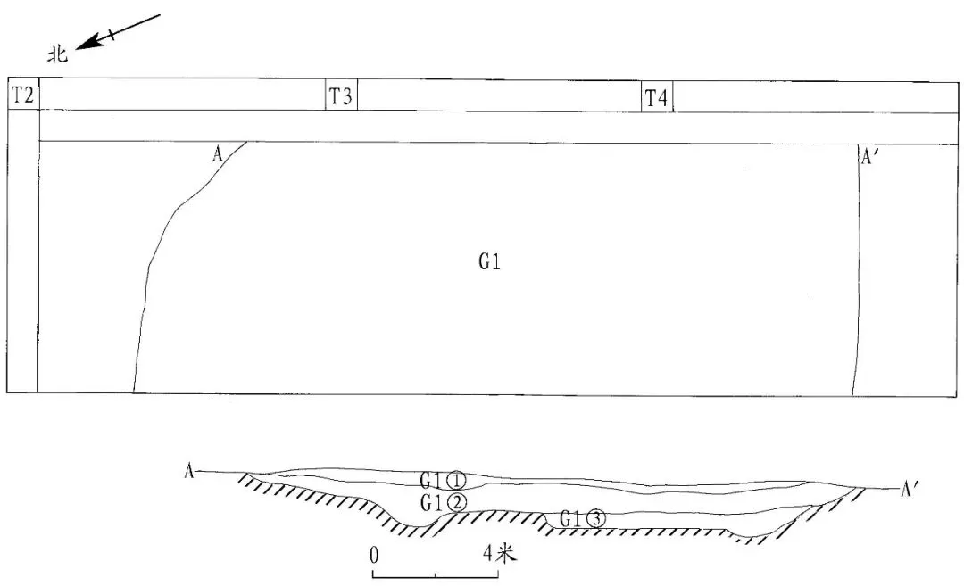
      G1  位于发掘区中部,分布于 T2、T3、T4 三个探方,东、西均延伸至发掘区外,受发掘面积限制未完全清理。开口于③层下,下部叠压着G2。东西走向,方向 290°(以南岸为准)。平面呈长条形,剖面呈上宽下窄的倒梯形。发掘部分长 8、宽22.6、深 1.72米。G1两侧发现护岸遗存,据发掘剖面,G1 护岸由碎砖、石块及黄褐色土夯筑加工而成。G1北侧护岸被F1打破,残宽3.4米;G1南侧护岸被F3打破,残宽13.8米。沟内堆积据土质土色,分为三层(图四)。G1①层,深灰色淤土层,土质疏松,夹杂较多黑木炭颗粒及零星碎瓷片。深 1.7~2.3、最厚处 0.63米。G1②层,青灰色砖瓦层,土质疏松,夹杂大量的砖瓦、石块等。深 1.9~3.2、最厚处 1.25 米。出土遗物以瓷器及建筑构件残片为主,其中瓷器有青瓷、青白瓷、黑釉瓷,可辨器形有碗、盘等。G1③层,深灰色淤土层,土质疏松,夹杂零星的碎砖瓦。深 2.8~3.2、最厚处 0.5 米。出土遗物不多,有少量的青瓷、青白瓷等,可辨器形有碗、碟等。

      G2  位于发掘区中部,分布于 T3、T4 两个探方。开口于③层下,上部被 G1 叠压,打破生土层。东西走向,方 向 约 282° 。平 面 呈 长 条形,剖面呈上宽下窄的倒梯形。发掘部分长 8、宽 10.5、残 深 3.1~4、最 厚 处 0.7 米(图五)。沟内填土呈黄褐色,土质较为致密,含碎砖瓦片及少量贝壳。

      此外,在 G1、G2 的南北两侧还清理出宋代至明清时期的灰沟、灰坑、房址、道路等遗迹,其中宋代的遗迹含灰坑 13 座,房址 1 处;明清时期的遗迹有房址 4 处,道路1条。简介如下。

      灰坑 13处。编号H1—H13,均开口于③层下,平面形状呈椭圆形、长方形及不规则形等几种,部分灰坑出土陶瓷片等遗物。从开口层9位和出土遗物判断其年代应为宋代。

      H1位于 T5 西北角。开口于③层下,打破G1南侧护岸。平面形状呈椭圆形,斜直壁,底近平。直径0.55~0.8、深 0.35 米(图六)。坑内填土灰色,土质松软,含木炭颗粒。

      房址  5 处。编号 F1—F5,因受发掘范围限制,均未揭露完整。其中 F1—F4,均开口于②层下,营建方式一致,部分房址出土有琉璃板瓦等,应为明清时期遗迹。F5,开口于③层下,结合出土瓷器判断,应为宋代。

      F1  位于 T1 与 T2 东部。距地表 1.3 米,开口于②层下,打破③层及生土,方向 10°。平面近长方形(因受发掘面积限制,揭露不全,部分已伸出发掘区外),东西发掘长 6.1、南北长 11.1 米(图七)。根据剖面来看,该建筑基址由黄褐色土与砖瓦相间夯筑而成,包含零星瓷片。残存六层,每层厚0.1~0.2米。

      F5  位于 T5,部分延伸到 T4 南部,南侧、东侧均延伸至探方之外。距地表 2 米,开口于③层下,打破生土,方向 30°。平面近长方形(因受发掘面积限制,揭露不全,部分已伸出发掘区外),南北发掘长 11.05、东西宽 7 米(图八)。根据剖面来看,该建筑基址由黄褐色土与砖瓦相间夯筑而成,包含瓦当及零星青瓷碎片等。残存三层,每层厚 0.35 ~ 0.65 米。F5 共发现 3 处磉墩(编号 SD1— 3),形状不甚规则,呈长方形或方形,长 0.65 ~ 0.9、深 0.3 ~ 0.6 米,内填黄褐色土,土质纯净。

      道路   1 条。编号 L1。位于 T1 与 T2 西部,距地表 1.3 米,开口于②层下,打破③层,方向 100°。由砖铺路面及垫土组成,发掘部分残长 3.1、宽4.7 、最厚处 0.3 米(图九)。砖铺路面残长 1.9、宽 1.65米。L1 为 F1 与 F2两处建筑基址的连接通道,出土遗物有板瓦残片。时代应为明清时期。

图三//   毗卢寺遗址发掘遗迹总平面图

图四//   毗卢寺遗址 G1 平、剖面图

图五//   毗卢寺遗址 G2 平、剖面图

图六//   毗卢寺遗址 H1 平、剖面图

图七//   毗卢寺遗址 F1 平、剖面图

图八//   毗卢寺遗址 F5 平、剖面图

图九//   毗卢寺遗址 L1 平、剖面图

    (三)遗物

      该遗址的文化层和遗迹中均出土了遗物,从质地上分为陶瓷器、砖等,从用途上分为生活类器物、建筑构件等。文化层出土遗物数量不多,从质地上看,以瓷器为主,器形有碗、盏、盘等;另有少量陶器。遗迹中,以灰沟出土遗物数量最多,且时代面貌复杂,出现了同一地层中包含不同时期遗物的情况,这和灰沟的形成与废弃过程不无关联。灰沟出土遗物中不仅有六朝时期青瓷,亦有晚至宋代的青釉和黑釉瓷器。器形以常见的生活器皿(如碗、盏)为主。此外还出土部分建筑构件,如瓦当、筒瓦等。

      1. 陶器

      莲花纹瓦当 4 件。T2③︰1,边轮高出当面。当面饰 10 瓣莲花,莲瓣上有棱线。莲房中间内凹,中有 7 颗莲子。瓣间分割线顶端呈箭头形。直径13、边轮宽 0.9 厘米。(图一〇:1)。T5③︰2,当面饰9 瓣莲花,莲花上有浅棱线。莲房凸起,中有 8 颗莲子。瓣间分割线莲蕾出三尖。直径 13.2 厘米、边轮宽 1 ~ 1.4 厘米(图一〇:2)。T2G1②︰3,边轮高出当面。当面饰 10 瓣莲花,莲瓣上有棱线。莲房中间内凹,中有 7 颗莲子。瓣间分割线顶端呈 T 形。直径 12.4、边轮宽 1 厘米(图一〇:3)。T3G2︰10,边轮高出当面。当面饰 10 瓣莲花,莲瓣上有微微凸起的棱线。莲房中间突起,内有 7 颗莲子。瓣间分割线顶端呈 T 形。直径 13.6、边轮宽 1.2 厘米(图 一〇:4)

      联珠莲花纹瓦当    13 件。T3G1②︰20,当面饰8 瓣莲花,莲瓣较宽肥。莲房外饰一道凸弦纹,莲房中部凸起,中有 8 颗莲子。瓣间分隔线顶端呈 T形。莲瓣外围饰一道凸弦纹,外饰一周联珠纹带。直径 15、边轮宽 1.3 厘米(图一〇︰5)

      人面纹瓦当    1 件。T3G2︰4,双目凸起,高鼻梁,双颊圆鼓,口微张,口部周围两侧有飘拂状胡须。直径 14.4、边轮宽 1 厘米(图一〇︰6)

      兽面纹瓦当    1 件。T3G2︰9,双目斜立,大口,露齿,鼻梁高挺,上部直达额头。口鼻两侧饰有弯曲线条代表胡须。直径 14、边轮宽 1 厘米(图一〇 ︰ 7)

      筒瓦    5 件。T3G1②︰15,残,泥质灰陶。半筒形,前端有瓦舌。残长 27.8、宽 14.8、高 6.6 厘米(图一〇︰8)

      砚台 1 件。T5③︰3,“风”字形。残长 10.6、宽6、厚 2.6 厘米(图一〇︰9)

      捶丸    3 件。圆球状。T3G1②︰25,施酱釉,器身仅一半施釉,有流釉。直径 3.4 厘米(图一〇:10)。T3G1②︰26,器身彩绘花卉纹。直径 4.35 厘米(图一〇:11)。T3G1②︰27,器身彩绘螺旋纹。直径4.2 厘米(图一〇:12)

      2. 瓷器

      碗 7 件。按釉色,有青釉和青白釉两种。

     青釉碗 6 件。T3②︰3,仅存下腹部及圈足。灰褐色胎,青釉泛黄。内壁满釉,外壁施釉近足端。内底刻圆,内壁满刻篦划纹。底径 5.6、残高4厘米(图一一︰1)。T5③︰8,腹部残,可修复。敞口,圆唇,斜弧腹,圈足。灰黄胎,青釉泛黄,亚光。内底 刻 圆 ,内 底 心 有 8 处 松 子 状 叠 烧 痕 迹 。口 径18.4、底径 9.4、高 5.8 厘米(图一一︰2)。T3G1①︰3,口沿残,可修复。敞口,斜弧腹,圈足。青灰胎,青釉偏黄,釉面亚光,局部可见积釉。内壁满釉,外壁施釉至下腹部。内壁刻划篦划纹为地的花卉纹,外壁为折扇纹。口径 17.2、底径 5.4、高 6.8 厘米(图一一︰3)。T3G1③︰1,口沿残,可修复。敞口,斜弧腹,圈足。褐色胎,青釉泛黄,器身流釉现象严重,外壁施釉至下腹部。内底心可见放射状纹样,内底有 12 处泥点状支烧痕。口径 17.6、底径 8.4 、高 6.2 厘米(图 一一 ︰4)。 T3G2︰1,器身残,可修复。直口,上腹竖直,下腹圆曲,饼足。灰胎。青釉泛黄,釉面光亮,可见大量开片。内壁满釉,外壁施釉至下腹部。口径8.4、底径 3.2、高 5.6 厘米(图一一 ︰5)。T3G2︰3,器身残,可修复。直口,上腹竖直,下腹圆曲,饼足。灰黄胎。青釉泛黄,釉面光亮,局部有流釉现象。内壁满釉,外壁施釉至下腹部。口径 9.2、底径 3.2 、高 6.6 厘米(图一一︰6)

      青白釉碗 1 件。T4G1 ③︰2,仅存碗底。圈足。灰白胎。青白釉,釉面光亮,内壁满釉,外壁施釉至足端。外底可见垫饼支烧痕。底径 6.2 、残高 3.6 厘米(图一一︰7)

      盏 3 件。T4③︰6,口沿及腹部残,可修复。敞口,斜直腹,矮圈足。黄灰胎,胎质致密。外壁施黑釉,外底无釉,内壁鹧鸪斑。口径 12.6 、底径 3.6、高 5.6 厘米(图一一︰8)。T4G1②︰1,口沿及腹部残,可修复。敞口,圆唇,斜直腹,矮圈足。黄褐胎,内壁窑变,外壁施黑釉不及底。口径12.4、底 径 3.6、高 5.4 厘 米(图 一一 ︰9)。T3G1②︰2,器身残,可修复。敞口,斜弧腹,圈足略内凹。褐色胎,内壁满施黑釉,外壁施釉至下腹部。口径 11.2、底径 3.2、高 4.2 厘米(图一一︰10)

      碟 1 件。T3G1①︰1,器身残,可修复。敞口,弧腹较浅,矮圈足。灰胎,白釉,釉面光亮,可见大量细碎开片。内底涩圈,外壁施釉至下腹部。口径 11.6、底径 7.2、高 2.4 厘米(图一一︰11)

      盘 2 件。按釉色分为青釉、白釉两种。

      青釉盘    1 件。T5③︰7,器身残,可修复。敞口,花口,斜直腹,饼足内凹。褐色胎,青黄釉。内底刻圆,内底心残存 2 处叠烧痕迹。口径 14.4、底径 7.8、高 4.2 厘米(图一一︰12)

      白釉盘    1 件。T4G1②︰8,器身残,可修复。敞口,弧腹,圈足。灰白胎,白釉,釉面亚光偏黄。内底刻圆,内壁满釉,外壁施釉至足端。口径 16.8、底径 8.8、高 3 厘米(图一一︰13)

      钵    2 件。T3G2︰6,器身残,可修复。敞口,斜弧腹,饼足。灰白胎。青釉,釉面斑驳不均。内底残存 10 处支钉痕。口径 15.6、底径 9.6、高 7 厘米(图一一︰14)。T3G2︰7,底足残。敞口,斜弧腹。灰胎。青釉,釉面光亮,外壁刻莲瓣纹。口径 21.2、残高10 厘米(图一一︰15)

      高足盘    1 件。T4G1②︰10,仅存盘心及高足。黄灰胎,青釉泛黄,施釉至近足端。盘心模印宝相花。底径 13、残高 6.2 厘米(图一一︰16)

      盒   1 件。T4③︰1,仅存盒身,部分残,可修复。尖圆唇,子口内敛,直腹,平底。黄褐胎,青釉泛黄。口径 6.6、底径 4.8、高 4 厘米(图一一︰17)

      砚滴    1 件。T3G1②︰11,器身完整。小口,筒形腹,平底。口与腹部间贴塑环形把手,另一侧置弧形流。器身上腹部捏塑呈山峰重叠状。灰白胎,器身遍施白釉。口径 0.8、底径 3.6、高 4.6 厘米(图一一︰18)

      3. 其他

      铜钱    1 枚。T5③︰10,至道元宝。直径 2.5 厘米(图一二)

图一〇// 毗卢寺遗址出土陶器

1—4. 莲花纹瓦当(T2③:1、T5③:2、T2G1②:3、T3G2:10) 5. 联珠莲花纹瓦当(T3G1②:20) 6. 人面纹瓦当(T3G2:4)

7. 兽面纹瓦当(T3G2:9) 8. 筒瓦(T3G1②:15) 9. 砚台(T5③:3) 10—12. 捶丸(T3G1②:25、T3G1②:26、T3G1②:27)

图一一// 毗卢寺遗址出土瓷器

1—6. 青釉碗(T3② ∶3、T5③ ∶8、T3G1① ∶3、T3G1③ ∶1、T3G2∶1、T3G2∶3) 7. 青白釉碗(T4G1③ ∶2)

8—10. 黑釉盏(T4③ ∶6、T4G1② ∶1、T3G1② ∶2) 11. 白釉碟(T3G1① ∶1) 12. 青釉盘(T5③ ∶7) 13. 白釉盘(T4G1② ∶8)

14、15. 青釉钵(T3G2∶6、7) 16. 青釉高足盘(T4G1② ∶10) 17. 青釉盒(T4③ ∶1) 18. 白釉砚滴(T3G1② ∶11)

图一二// “至道元宝”铜钱(T5③:10)

      二、李公祠遗址

      李公祠位于南京市秦淮区四条巷 77 号,南邻文昌巷,西邻长白街,是南京市文物保护单位,同时也在南京市地下文物重点保护区——六朝宫城及御道遗址区范围内。

      1901 年北洋名臣李鸿章去世后,慈禧命令在李鸿章故乡及生活过的城市为其修建祠堂,南京李公祠为其中之一。

      整个建筑群坐北朝南,周以石砌围墙,占地面积 8120 平方米,分东西两路,两路各有照壁。东路为祠堂主体,中轴线上前后五进建筑,每进建筑之间均连以回廊。西路为住宅以及花园、鱼池、亭台、回廊等,两路建筑中间有甬道相隔。李公祠现存东路建筑保存有照壁、一进建筑、第二和第三进建筑之间的东西两侧厢房、第四进建筑(大殿)及西侧连廊、第五进建筑。西路保存有照壁、一进建筑、二进建筑、三进建筑(荷花厅)、四进建筑(1948 年的民国建筑)。

     为配合李公祠保护和复兴项目工作,2017 年12 月—2018 年 7 月,南京市考古研究院在项目地块内进行了考古勘探工作,清理地表垃圾后可以比较清楚地看到砖基、砖墩、砖瓦堆积、木桩等与李公祠相关的遗迹,勘探还发现了时代早于李公祠的踩踏面、夯土等遗迹。为科学编制李公祠保护和复兴项目保护规划方案,经上级有关部门批准,南京市考古研究院对勘探发现的踩踏面、夯土及荷花池进行考古发掘。本次考古发掘均在李公祠西路建筑院内,分为南北两区。南区在李公祠西路一进建筑南侧,发掘对象为前期勘探发现的遗迹。北区在李公祠西路三进建筑所在的荷花池区域。两区原计划发掘面积 1000 平方米,后因遗迹延伸扩方,实际发掘面积 1250 平方米。南部发掘区发掘至明代层面,由于涉及对明代建筑的保护,未继续向下发掘,因此在南部发掘区没有早于明代的遗迹。北部发掘区荷花池清理至底后,暴露出六朝时期至宋代的灰坑、墙基等遗迹。本次考古工作发掘清理出明清建筑基址 6 处、六朝至明清时期的灰坑 9 处 、南朝时期墙基 1 处,共计 16 处遗迹(图一三、图一四);另在李公祠东路建筑区间空地内进行考古勘探,确认古河道 1 处(图一五)。本文主要介绍与六朝建康城相关的遗迹,而与李公祠相关的晚期遗存将另文介绍。

图一三//   李公祠遗址南部发掘区遗迹分布图

图一四//   李公祠遗址北部发掘区遗迹分布图

图一五//   李公祠遗址勘探遗迹示意图

    (一)地层堆积

      北区发掘区主要有荷花池遗迹,地表可见其遗迹轮廓。南部发掘区虽只发掘至明代层,但根据晚期灰坑的剖面,仍可见到较为完整的地层序列(因为叠压在遗迹下,没有地层图),简述如下。

      ①层:近现代建筑层。灰色杂土,质地松散,含有较多现代建筑材料。厚 0.4 ~ 0.65 米。

      ②层:清代层。灰褐色杂土,质地疏松,含较多 草 木 灰 、碎 瓦 砾 、砖 块 、青 花 瓷 残 片 。厚 0.7 ~ 1 米。

      ③层:明代层。黄灰色土,质地松散,含较多草木灰、瓦砾、砖块,少许白灰渣、红褐土颗粒。厚0.5 米左右。

     ④层:宋代层。灰土,质地松软,含草木灰、黑釉瓷盏、青瓷残片等。此层未全面发掘,据晚期灰坑的剖面显示该层局部厚 0.7 ~ 0.9 米。

      ⑤层:六朝层。此层未全面发掘,但根据晚期灰坑剖面可知,该层呈黄绿色水沁土,含少许草木灰、青瓷残片。

    (二)相关遗迹

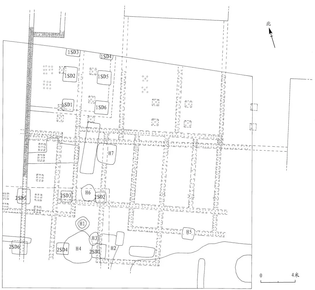
      本次考古发掘与六朝建康城相关的遗迹有砖砌墙基 1 处(Q1)、灰坑 3 座(H8—H10)(图一四),这几处遗迹基本都被压在李公祠荷花池下。荷花池位于李公祠西路二进建筑北侧,由外部七曲荷塘及内部圭形水榭组成,水榭上部分布有东西四排、南北六列方形砖砌磉墩,推测为一处东西三开间的建筑,其部分遗迹甚至暴露于地表。现将与建康城相关的遗迹介绍如下。

      1. 墙基

      1 处(Q1)。夯土包砖墙。 

      Q1   位于李公祠工地北部发掘区荷花池内,距地表 2.1 米,被荷花池中部的水榭建筑所叠压,向下叠压在黄白色沙性生土上。Q1 由东侧砖砌包墙、墙体及西侧沟槽组成。东侧砖砌包墙与西侧沟槽基本平行,其内为墙体,宽 14.3 米。由于后期破坏扰乱严重,墙体残留较少,仅在紧贴砖墙西侧的区域保存小面积的夯土,呈灰黄色,土质硬结,内含较多灰土块及碳粒。包砖西侧约45 厘米处有一宋代灰坑 H8打破夯土墙体及生土。

      西侧墙包砖已无存,只残留包砖的沟槽遗迹,方向25°。沟槽宽 0.43 米左右,剖面呈口宽底窄的梯形,西壁呈 近 竖 直 壁 ,东 壁 向 东 倾斜。因被两个南朝晚期灰坑H9、H10 打破,分为南北两段。内部填土呈浅灰色,含少许的草木灰颗粒。

      东侧砖砌包墙平面呈曲尺形,现存高度 0.5 米,共计 10 层砖,向内倾斜,单砖顺置平放,黄泥粘结,逐层内收,每层砖向西内收约 0.01 米左右。南北向包砖残长 2.7 米,方向30°。东西向包砖长0.75米,方向 115°。南北向墙体南段部分叠压于水榭之下,水榭之南仅残存沟槽。墙体北段部分的北端东折,东西向墙体全长 3.3 米左右,仅存包砖0.75 米,其余仅残留底部沟槽,墙槽北侧为黄褐色夯 土 ,夯 土 层 的 北 半 部 分 被 荷 花 池 北 侧 砖 墙叠压。

      2. 灰坑

      共 3 处。

      H8 位于工地北部发掘区荷花池内北侧偏东部,向下分别打破砖包夯土墙 Q1、生土。平面呈圆形,口径约 1.3 米,坑口距地表 2.1、深 1.2 米。距圭形水榭基础北壁 0.5 米。坑壁向下外扩呈袋状。坑内堆积深灰色,质地松散,内含白瓷片、青瓷片、酱釉瓷盏、泥质陶片、螺壳等。

      H9 位于荷花池内西侧,部分被圭形水榭西侧壁叠压,灰坑平面被破坏严重,仅残存打破 Q1北侧沟槽的弧线沟边,坑口距地表 2.1、坑深0.52米,坑壁斜,圜底。坑内堆积出土有青瓷碗、盏、盘口壶残件。

      H10 位于荷花池内西南侧,大部分叠压在荷花池西南侧曲壁下,打破 Q1 沟槽,平面仅存半圆形,半径约 4.05、坑口距地表 1.8、坑深 0.52 米。坑内堆积呈深灰色,内含少许青瓷残片、酱釉缸片、泥质瓦片。

      3. 河道

      1处。

     本次发掘过程中,在李公祠地块未发掘区域进行了勘探,具体布孔地点有荷花池的东侧和南侧、李公祠东路第四和第五进建筑之间、已无存的第二和第三进建筑区域及其间空地。发现一处大致南北向河道,河道北部折向东北,最西侧距Q1 东壁包砖不足 2 米,河道南侧折向东南,在南北约 100 米的范围内,河道呈现出口朝东的 U 形曲折。

    (三)遗物

      本次发掘,南部发掘区只发掘至明代层,且地层被晚期建设严重破坏,故遗物较少。本次出土遗物主要集中于遗迹单位中,如前述的 H8、H9等灰坑中。现将灰坑出土遗物介绍如下。

      1.H8 出土遗物

      青瓷碗    2 件。H8︰1,口沿稍残,敞口,八曲花口,斜弧腹,圈足。灰胎,青釉,釉面光亮,内壁满釉,外壁施釉至足端。内壁刻八道 S 形复线,将腹壁分为八个区间,其间饰花、叶纹,内底刻饰花叶纹。外壁素面。口径 19.2、底径 7.2、高 8.6 厘米(图一六︰1)。H8︰6,残,可修复。敞口,斜弧腹,圈足。灰胎,青釉,釉面光润,内壁满釉,外壁施釉至足端。内壁剔刻卷云纹。外壁口沿下饰弦纹,其下饰折 扇 纹 。口 径  18.4、底 径 6、高 7.4 厘 米(图一六︰2)

      青白瓷碗    3 件。H8︰2,残。敞口,葵口,尖唇,斜直腹,饼足,挖足极浅。灰白胎,青白釉,釉面泛黄,外底部露胎无釉。内壁花口至中腹部有六条等分出筋,内壁腹部有大刻圆,圆内饰卷云纹。口径 14.4、底径 4.6、高 4 厘米(图一六︰3)。H8︰3,口腹部略残。敞口,斜直腹,饼足。灰白胎,胎质细腻,较薄。青白釉,釉面可见大量开片,外足无釉。内壁腹部饰三组卷草纹。口径 12、底径 3.2、高4.2厘米(图一六︰4)。H8︰7,尖唇,敞口,斜直腹,饼足。灰白胎,青白釉,釉面光亮,局部有开片。内壁满饰花卉纹。内底饰小刻圆。口沿原镶饰银扣,已脱落。口径 15.6、底径 3.9、高 5.2 厘米(图一六︰5)

      黑釉瓷盏    3 件。H8︰4,口、腹部残。敞口,斜直腹,平底内凹。灰黄胎。内外壁均施黑釉,外壁施釉近足端。外壁玳瑁纹窑变,内壁饰剪纸贴花。口径 11.4、底径 3.8、高 6 厘米(图一六︰6 )。H8︰5,口、腹部残。敞口,斜直腹,矮圈足。灰黄胎。内外壁均施黑釉,外壁施釉近足端。外底墨书“陈”。口径 11.8、底径 3.6、高 5.4 厘米(图一六 ︰7)。H8︰8,口、腹部残。敞口,斜弧腹,平底内凹。灰黄胎。内外壁均施黑釉,外壁施釉近足端。内壁饰玳瑁纹。外底有墨书痕,不辨。口径 11.4、底径 3.4、高 5.8 厘米(图一六︰8)

      2.H9 出土遗物

     青瓷碗    4 件。H9︰1,基本完整,口沿稍残。敞直口,弧腹,饼足。灰白胎,青釉,细开片,外壁施釉至下腹部,内壁满釉,有三支钉点。口径 11.2、底径 5.2、高 6 厘米(图一七︰1)。H9︰2,略残。圆唇,直口微敛,腹上部近直,略内收,下部斜收,深弧腹,饼足。底部有二分之一损毁。灰胎,青釉,细开片。内壁满釉,外壁施釉不及底。口径 12.4、底径 4.2、高 8.6 厘米(图一七︰2)。H9︰3,口、腹部残。圆唇,直口,深弧腹较深,饼足。灰胎,青黄色釉,内、外施釉皆不及底,细开片。口径 15.6、底径 6 、高 9.6 厘米(图一七︰3)。H9︰8,口、腹部残。方唇,直口,深弧腹,饼足。灰白胎,青釉,细开片。内壁满釉,外壁施釉不及底。口径 12.8、底径 4、高 8.2厘米(图一七︰4)

      青瓷盘口壶    1 件。H9︰4,残,仅存口沿部。圆唇,浅盘口。灰黄胎,盘口及颈部内外均施青釉。口径 10.8、残高 7 厘米(图一七︰5)

      瓷盏    3 件。H9︰5,口沿稍残。尖唇,敞口,弧腹,饼足。灰白胎,质较疏松。青黄色釉,釉色较为光亮,细开片。外壁施釉不及底,内壁满釉,内底有积釉现象。口径 8、底径 3.6、高 3.8 厘米(图一七︰6)。H9︰6,敞口近直,弧腹,饼足。灰白胎,青灰色薄釉,外壁施釉不及底,内底无釉。口径 9.4、底径3、高 5.8 厘米(图一七︰7)。H9︰7,口微敛,斜弧腹,饼足。灰胎,青釉较深,内外壁均施釉至腹中部。口径 8、底径 3.6、高 4.2 厘米(图一七︰8)

图一六// 李公祠遗址 H8 出土瓷器

1、2. 青釉碗(H8∶1、6) 3—5. 青白釉碗(H8∶2、3、7) 6—8. 黑釉盏(H8∶4、5、8)

图一七//   李公祠遗址 H9 出土瓷器

1—4. 青釉碗(H9︰ 1—3、8) 5. 青釉盘口壶残片(H9︰4) 6—8. 盏(H9︰5—7)

      三、结语

   (一)与建康城遗址相关的遗迹辨析

      这两处遗址出土遗迹及遗物较丰富,年代跨越六朝至明清时期。本文着重讨论与六朝建康城相关的遗迹。

     毗卢寺遗址中,G2 内出土物时代较一致,出土的瓷器、瓦当均属六朝时期遗物,其中青瓷碗(G2∶1、3)、莲花纹瓦当为典型的南朝时期遗物;此外,还出土有人面纹及兽面纹瓦当等六朝时期遗物。李公祠遗址中,Q1 虽未出土遗物,但根据遗迹间叠压打破关系,不难确定其时代。H8 据出土层位及遗物来看,为一处宋代灰坑;H9 中出土的青瓷碗(H9︰2、3)为典型的南朝遗物;Q1被 H8 、 H9、H10 打破 ,据 此 ,可确定Q1的时代不晚于南朝。

      这两处遗迹在六朝建康城中处在怎样的位置?近二十年的南京城市考古工作,尤其是利济巷西长发大厦、邓府巷东、游府西街小学、六朝博物馆等几处地点的发掘,基本廓清了六朝建康城都城四至范围[1]。其中长发大厦、六朝博物馆一线被认为是六朝建康宫城东墙及东壕所在。毗卢寺遗址、李公祠遗址这两处地点从空间位置上看,均位于建康宫城东墙外侧。在建康宫城东墙外发现的砖包墙 Q1,虽然由于发掘面积的限制及遗迹本身的保存状况,我们无法看到遗迹的全貌,但仅就现存遗迹现象,或可以推测城墙当时的规模及结构。Q1 东北西南走向,方向为 25°。根据东侧包砖和西侧包砖的基槽,基本可以判断墙体宽14.3 米,墙内外包砖,包砖向内收分,砖墙的曲折处应是一处凸出的马面结构。在建康宫城东墙的东侧发现的与其大致平行的包砖墙,最大的可能就是建康宫城外的都城的东城墙。六朝建康城都城并非在东晋时期就有城墙,最早只有都城的正南门宣阳门,被称为“白门”。当时有谚语“白门三重门,竹篱穿不完”,生动地描述了宣阳门的简陋。南齐高帝时才开始“改立都墙”,并且宣称“吾欲令后世无以加也”[2 ],据此或可推知建康都城城墙、城门的修建工程大,并且等级高,此次李公祠地点发现的 Q1 的修建年代最早应该就是南齐高帝时期,其废弃时间应该是隋灭陈后,缘于隋文帝对建康城实施的“荡平耕垦”政策。

      Q1 是建康都城的东墙,东墙东侧的大致呈南北走向、弯弯曲曲的河道应该就是青溪。文献中在描述建康都城东墙的城门时,会提及穿门道路东度青溪上的桥。《建康实录》卷七许嵩注曰: “ ……东面最南清明门,门三道,对今湘宫巷门,东出青溪港桥。正东面建春门,后改为建阳门,门三道,尚书下舍在此门内,直东今兴业寺后,东度青溪菰首桥……”[3]其中从“东度”“东出”可以判断都城东墙和青溪的空间关系,即青溪是在建康都城东墙外。由此推断此次勘探发现的古河道应该就是青溪。

      青溪是六朝建康城东侧最主要的一条河流,其水来自建康城东钟山和城北玄武湖,自东北向西南蜿蜒曲折,最终汇入秦淮河,又称为九曲青溪。五代十国时期,杨吴为修金陵城,将蜿蜒的青溪截断取直作为南唐金陵城的东护城河,即现在龙蟠中路西侧的河道,而金陵城内的青溪故道因无水源补给而最终湮塞。如《景定建康志》的记载:“今城东北有渠,北通玄武湖,南行经散福亭桥、竹桥,抵府城东北角外,西入城濠,里俗呼为‘长河’,即古青溪。本自今竹桥西南行,五代杨淳于此截溪立城,由是青溪半在城外。其在城中者,岁久堙塞。但城东北隅迤逦至上元县治东南,上水闸以西一带,青溪遗迹或见或隐,桥亦不详所在。”[4]其中府城(即南宋建康府城,也是杨吴、南唐的金陵城)东北角的竹桥,正是青溪被截入杨吴城濠之处,即现在珠江路南侧的竺桥,也是我们判断六朝青溪走向位置的一个关键节点。六朝时期的青溪之水来自竹桥东北,而后流向西南。而毗卢寺北距珠江路南侧河道约 400 米,东距龙蟠中路西侧河道约 130 米,在竹桥的西南方向,正处在六朝时期青溪的来水路线上,因此推测毗卢寺发现的古河道应是六朝青溪故道。前辈学者在讨论青溪河道的走向时,已经指出青溪流经毗卢寺[5]。李公祠地点东距龙蟠中路西侧河道(即杨吴城濠东段)约 400 米,也在竹桥的西南方向。

      基于以上判断,笔者推断毗卢寺遗址的六朝时期灰沟 G2及李公祠遗址 Q1 东侧的弯曲河道,极有可能就是建康城东的青溪。李公祠遗址发现的 Q1,方向为 25° ~ 30° ,与建康宫城东墙基本平行,很可能是建康都城城墙的一部分。此前的南京城市考古工作中,也曾在白下路与长白街交叉口西北侧的南京市第六中学工地发现南朝时期夯土墙,发掘者认为是六朝建康城都城南墙位置[6 ],但简报缺少城墙遗迹的具体描述及相关数据。此次李公祠地点 Q1的考古发掘使我们对建于南齐时期的都城墙有了更具体的认识,是近年来六朝建康城考古的一次重要发现。

      此外,值得注意的是,毗卢寺遗址 G2 上层被一晚期灰沟 G1 叠压。G1 据土质土色可分为三层。出土遗物方面,G1①层出土的青釉双面刻划花碗(G1①∶3)主要流行于北宋晚期至南宋早期,在浙江、福建等地均有烧制。相似器型见于“南海 一号”出水的福建窑场生产的青瓷碗(T0402 ② ∶ 179)[7]。G1②层出土的高足盘(G1②∶10)与江西洪州窑罗湖寺前山窑址中出土的 Bb 型青瓷高足盘(T9③∶1)[8]器型和纹饰相似,湖北武昌马房山隋墓中也出土了同类高足盘(M21:10)[9]。此类青瓷高足盘的年代或已晚至隋代。此外,G1 还出土了一定数量的莲花纹瓦当,其中大量饰联珠纹。从出土遗物来看,面貌复杂,大部分瓷器时代为南宋时期,另有部分晚唐五代、六朝时期青瓷残片。G1 年代无疑晚于 G2,结合它们的位置关系看,这两处遗迹平面几乎存在于同一空间范围内,根据河道的自然变迁规律,推测 G2 应与 G1 同属一处河道遗存。G2 推测为六朝青溪古道,而 G1内的堆积则反映了五代至宋元时期青溪被包入金陵城内、没有水源补给后的河道变迁状况。五代时期,杨吴修金陵城,青溪被截断取直,城内的青溪因无水源补给而最终湮塞。南宋马光祖任建康知府时,对建康府城曾进行过较大的营建活动,疏浚河道,修建亭台楼阁,建康府城的面貌焕然一新[10]。G1 内出土遗物时代跨度较长,其中大部分瓷器时代为南宋时期,当为 G2 湮塞时填入的生活垃圾。此外,还有部分早期遗物当为晚期开挖时扰入。G1③层从剖面看,有明显开挖痕迹,疑与清淤河道相关;临近 G1 南侧还发现了宋代建筑基址( F5),推测为当时河道边修建的亭台楼阁。南宋以后,城市的管理水平不复从前,城内的水道开始湮塞,直至废弃。G1 内未发现宋元以后的遗物,说明其在元代以后已废弃。

   (二)毗卢寺出土联珠纹莲花瓦当小议

      莲花纹瓦当是六朝时期最为流行的建筑构件之一。毗卢寺遗址 G1 中清理出两类莲花瓦当,其中一类(如 T2③ :1)较为常见,当面饰 10 瓣莲花,莲瓣上有棱线;莲房中间内凹,中有 7 颗莲子;瓣间分割线顶端呈 T 形。另一类为联珠莲花纹瓦当,中心莲瓣外围凸弦纹外饰一周联珠纹带,此类莲花纹瓦当比较特殊。建康城历年考古发掘工作中,在珠江路中段南侧工地[11]、大行宫[12]、钟山二号寺庙遗址[13]等地也曾出土过此类瓦当。总体而言,联珠莲花纹瓦当出土的地点零星分布,且数量稀少。贺云翱、王志高、井内洁等几位学者曾就这类瓦当作过相关研究。

      贺云翱通过类型学排比,将此类联珠莲花纹瓦当定为南朝晚期,相当于陈代时期,同时指出该 瓦 当 具 有 向 隋 唐 时 期 莲 花 纹 瓦 当 过 渡 的 特征[14]。王志高认为,联珠莲花纹瓦当的时代当具体分析。其中莲瓣间隔符为菱角纹者为南朝晚期遗物;而另一类尺寸较大者(大行宫人防广场工地出土),中间莲蓬内莲籽多而密,年代可能晚至晚唐五代[15]。日本学者井内洁在其著作《中国六朝瓦图谱》也公布过此类联珠莲花纹瓦当,出土地点不甚明确,仅标注“南京城内”。他通过对比北方材料,认为联珠纹与莲花纹组合的瓦当纹样最早见于 5 世纪末期的北魏复瓣莲花纹瓦当,之后在东魏北齐时期的邺城遗址也有较多发现。他认为南方联珠莲花纹瓦当的制作工艺来自北方。至于江南地区联珠纹出现的时间,他认为需进一步研究[16]

      综上,此类瓦当缺乏年代清晰的遗迹出土单位,学界或通过类型学分析,或通过不同地域出土材料,对该类瓦当作出研究,但仍难判断此类瓦当的时代。毗卢寺遗址中,此类联珠莲花纹瓦当集中大量出土于 G1②层,其出土遗物属沟内使用或清淤时填入的生活垃圾,其年代无法准确判断,但是联珠莲花纹瓦当的集中出土仍为此类型瓦当的研究提供了新材料。此外,该区域联珠莲花纹瓦当从别处搬运来可能性较小,推测该区域原应有相关建筑存在。

    (附记:发掘项目负责人为王宏;参与发掘和资料整理的人员有苏舒、郭龙发、孔祥锁、熊其亮、王宇翔及南京市博物总馆王光明;器物修复由蒋艳华完成;遗迹和器物线图由董补顺、郭龙发、熊其亮、孔祥锁完成;照片由祝乃军完成。)

      执笔:苏 舒  王光明  王 宏

——————

向上滑动阅览

[1]a. 王志高、贾维勇:《探秘——六朝建康城》,《中国文物报》2008 年 6 月6 日第 8 版;有关六朝建康城的复原研究,参见 b. 张学锋:《六朝建康城的发掘与复原新思路》,《南京晓庄学院学报》2006 年第 2 期;c. 王志高:《六朝建康城遗址考古发掘的回顾与展望》,《南京晓庄学院学报》2008 年第 1 期。

[2]梁·萧子显:《南齐书》卷二三《王俭传》, 中华书局 1972年,第 434—435 页。

[3]唐·许嵩撰、张忱石点校 :《建康实录》卷七《显宗成皇帝》,中华书局 1986 年,第 180 页。

[4]宋·周应合:《景定建康志》卷十六《疆域志二·桥梁》青溪七桥, 南京出版社 2009 年,第 377—378 页。

[5]同 1[b]。

[6]王志高:《六朝建康城遗址出土陶瓦的观察与研究》, 《六朝建康城发掘与研究》,江苏人民出版社 2015 年,第71 页。

[7]国家文物局水下文化遗产保护中心等:《南海 Ⅰ号沉船考古报告之二——2014~2015 年发掘(下)》,文物出版社 2017 年,第 356 页。

[8]北京大学中国考古学研究中心、江西省文物考古研究院、江西省丰城市博物馆:《丰城洪州窑址》,文物出版社 2018 年,第 166—173 页。

[9]湖北省文物考古研究所、湖北省博物馆、北京大学考古文博学院:《武昌隋唐墓》,上海古籍出版社 2021 年,第187 页。

[10]宋·周应合:《景定建康志》卷十四《建康表十·中兴建炎以来为年表》“景定元年庚申”条, 南京出版社 2009年,第 334—335 页。

[11]贺云翱:《六朝瓦当与六朝都城》,文物出版社 2005 年,第 46 页。

[12]王志高:《六朝瓦当的发现及初步研究》,《东南文化》 2004 年第 4 期。

[13]贺云翱:《南京钟山二号寺遗址出土南朝瓦当及与南朝上定林寺关系研究》,《考古与文物》2007 年第 1 期。

[14]同[11],第 48 页。

[15]同[12]。

[16]〔日〕井内古文化研究室:《中国六朝瓦图谱》,2012 年,图 124。

Excavations and Analysis of Six Dynasties Jiankang City Remains at

Pilu Temple and Li Hongzhang Memorial Hall, Nanjing

Nanjing Municipal Institute of Archaeological Research

      Abstract: From September 2017 to July 2018, the Nanjing Institute of Archaeological Research con_ ducted excavations at the sites of Pilu Temple and Li Hongzhang Memorial Hall (Ligongci). The excavations uncovered more than 30 relics dating from the Six Dynasties to the Ming and Qing dynasties, including ditch_ es, brick walls, ash pits, and building foundations. Over 60 artifacts made of pottery, porcelain, bronze, and stone were unearthed. The discovery of river channels (ditches) and brick walls provides significant markers of the spatial layout of Jiankang City during the Six Dynasties, offering new foundational data for the restora_ tion and study of this historic city.

    Key words: Pilu Temple; Li Hongzhang Memorial Hall (Ligongci); Six Dynasties; Jiankang City; brick walls; river channels

                                                                (责任编辑:张平凤;校对:朱国平)

原文刊登于《东南文化》2024年第4期,更多内容敬请登录《东南文化》官网https://dnwh.njmuseum.com/

END

南朝考古  /欢迎关注 

最新文章

随机文章

基本 文件 流程 错误 SQL 调试
  1. 请求信息 : 2026-04-21 15:29:50 HTTP/2.0 GET : https://b.460.net.cn/a/533885.html
  2. 运行时间 : 0.077318s [ 吞吐率:12.93req/s ] 内存消耗:4,738.50kb 文件加载:140
  3. 缓存信息 : 0 reads,0 writes
  4. 会话信息 : SESSION_ID=16ac675e68339b6b52c9112c33f925a3
  1. /yingpanguazai/ssd/ssd1/www/b.460.net.cn/public/index.php ( 0.79 KB )
  2. /yingpanguazai/ssd/ssd1/www/b.460.net.cn/vendor/autoload.php ( 0.17 KB )
  3. /yingpanguazai/ssd/ssd1/www/b.460.net.cn/vendor/composer/autoload_real.php ( 2.49 KB )
  4. /yingpanguazai/ssd/ssd1/www/b.460.net.cn/vendor/composer/platform_check.php ( 0.90 KB )
  5. /yingpanguazai/ssd/ssd1/www/b.460.net.cn/vendor/composer/ClassLoader.php ( 14.03 KB )
  6. /yingpanguazai/ssd/ssd1/www/b.460.net.cn/vendor/composer/autoload_static.php ( 4.90 KB )
  7. /yingpanguazai/ssd/ssd1/www/b.460.net.cn/vendor/topthink/think-helper/src/helper.php ( 8.34 KB )
  8. /yingpanguazai/ssd/ssd1/www/b.460.net.cn/vendor/topthink/think-validate/src/helper.php ( 2.19 KB )
  9. /yingpanguazai/ssd/ssd1/www/b.460.net.cn/vendor/topthink/think-orm/src/helper.php ( 1.47 KB )
  10. /yingpanguazai/ssd/ssd1/www/b.460.net.cn/vendor/topthink/think-orm/stubs/load_stubs.php ( 0.16 KB )
  11. /yingpanguazai/ssd/ssd1/www/b.460.net.cn/vendor/topthink/framework/src/think/Exception.php ( 1.69 KB )
  12. /yingpanguazai/ssd/ssd1/www/b.460.net.cn/vendor/topthink/think-container/src/Facade.php ( 2.71 KB )
  13. /yingpanguazai/ssd/ssd1/www/b.460.net.cn/vendor/symfony/deprecation-contracts/function.php ( 0.99 KB )
  14. /yingpanguazai/ssd/ssd1/www/b.460.net.cn/vendor/symfony/polyfill-mbstring/bootstrap.php ( 8.26 KB )
  15. /yingpanguazai/ssd/ssd1/www/b.460.net.cn/vendor/symfony/polyfill-mbstring/bootstrap80.php ( 9.78 KB )
  16. /yingpanguazai/ssd/ssd1/www/b.460.net.cn/vendor/symfony/var-dumper/Resources/functions/dump.php ( 1.49 KB )
  17. /yingpanguazai/ssd/ssd1/www/b.460.net.cn/vendor/topthink/think-dumper/src/helper.php ( 0.18 KB )
  18. /yingpanguazai/ssd/ssd1/www/b.460.net.cn/vendor/symfony/var-dumper/VarDumper.php ( 4.30 KB )
  19. /yingpanguazai/ssd/ssd1/www/b.460.net.cn/vendor/topthink/framework/src/think/App.php ( 15.30 KB )
  20. /yingpanguazai/ssd/ssd1/www/b.460.net.cn/vendor/topthink/think-container/src/Container.php ( 15.76 KB )
  21. /yingpanguazai/ssd/ssd1/www/b.460.net.cn/vendor/psr/container/src/ContainerInterface.php ( 1.02 KB )
  22. /yingpanguazai/ssd/ssd1/www/b.460.net.cn/app/provider.php ( 0.19 KB )
  23. /yingpanguazai/ssd/ssd1/www/b.460.net.cn/vendor/topthink/framework/src/think/Http.php ( 6.04 KB )
  24. /yingpanguazai/ssd/ssd1/www/b.460.net.cn/vendor/topthink/think-helper/src/helper/Str.php ( 7.29 KB )
  25. /yingpanguazai/ssd/ssd1/www/b.460.net.cn/vendor/topthink/framework/src/think/Env.php ( 4.68 KB )
  26. /yingpanguazai/ssd/ssd1/www/b.460.net.cn/app/common.php ( 0.03 KB )
  27. /yingpanguazai/ssd/ssd1/www/b.460.net.cn/vendor/topthink/framework/src/helper.php ( 18.78 KB )
  28. /yingpanguazai/ssd/ssd1/www/b.460.net.cn/vendor/topthink/framework/src/think/Config.php ( 5.54 KB )
  29. /yingpanguazai/ssd/ssd1/www/b.460.net.cn/config/app.php ( 0.95 KB )
  30. /yingpanguazai/ssd/ssd1/www/b.460.net.cn/config/cache.php ( 0.78 KB )
  31. /yingpanguazai/ssd/ssd1/www/b.460.net.cn/config/console.php ( 0.23 KB )
  32. /yingpanguazai/ssd/ssd1/www/b.460.net.cn/config/cookie.php ( 0.56 KB )
  33. /yingpanguazai/ssd/ssd1/www/b.460.net.cn/config/database.php ( 2.47 KB )
  34. /yingpanguazai/ssd/ssd1/www/b.460.net.cn/vendor/topthink/framework/src/think/facade/Env.php ( 1.67 KB )
  35. /yingpanguazai/ssd/ssd1/www/b.460.net.cn/config/filesystem.php ( 0.61 KB )
  36. /yingpanguazai/ssd/ssd1/www/b.460.net.cn/config/lang.php ( 0.91 KB )
  37. /yingpanguazai/ssd/ssd1/www/b.460.net.cn/config/log.php ( 1.35 KB )
  38. /yingpanguazai/ssd/ssd1/www/b.460.net.cn/config/middleware.php ( 0.19 KB )
  39. /yingpanguazai/ssd/ssd1/www/b.460.net.cn/config/route.php ( 1.89 KB )
  40. /yingpanguazai/ssd/ssd1/www/b.460.net.cn/config/session.php ( 0.57 KB )
  41. /yingpanguazai/ssd/ssd1/www/b.460.net.cn/config/trace.php ( 0.34 KB )
  42. /yingpanguazai/ssd/ssd1/www/b.460.net.cn/config/view.php ( 0.82 KB )
  43. /yingpanguazai/ssd/ssd1/www/b.460.net.cn/app/event.php ( 0.25 KB )
  44. /yingpanguazai/ssd/ssd1/www/b.460.net.cn/vendor/topthink/framework/src/think/Event.php ( 7.67 KB )
  45. /yingpanguazai/ssd/ssd1/www/b.460.net.cn/app/service.php ( 0.13 KB )
  46. /yingpanguazai/ssd/ssd1/www/b.460.net.cn/app/AppService.php ( 0.26 KB )
  47. /yingpanguazai/ssd/ssd1/www/b.460.net.cn/vendor/topthink/framework/src/think/Service.php ( 1.64 KB )
  48. /yingpanguazai/ssd/ssd1/www/b.460.net.cn/vendor/topthink/framework/src/think/Lang.php ( 7.35 KB )
  49. /yingpanguazai/ssd/ssd1/www/b.460.net.cn/vendor/topthink/framework/src/lang/zh-cn.php ( 13.70 KB )
  50. /yingpanguazai/ssd/ssd1/www/b.460.net.cn/vendor/topthink/framework/src/think/initializer/Error.php ( 3.31 KB )
  51. /yingpanguazai/ssd/ssd1/www/b.460.net.cn/vendor/topthink/framework/src/think/initializer/RegisterService.php ( 1.33 KB )
  52. /yingpanguazai/ssd/ssd1/www/b.460.net.cn/vendor/services.php ( 0.14 KB )
  53. /yingpanguazai/ssd/ssd1/www/b.460.net.cn/vendor/topthink/framework/src/think/service/PaginatorService.php ( 1.52 KB )
  54. /yingpanguazai/ssd/ssd1/www/b.460.net.cn/vendor/topthink/framework/src/think/service/ValidateService.php ( 0.99 KB )
  55. /yingpanguazai/ssd/ssd1/www/b.460.net.cn/vendor/topthink/framework/src/think/service/ModelService.php ( 2.04 KB )
  56. /yingpanguazai/ssd/ssd1/www/b.460.net.cn/vendor/topthink/think-trace/src/Service.php ( 0.77 KB )
  57. /yingpanguazai/ssd/ssd1/www/b.460.net.cn/vendor/topthink/framework/src/think/Middleware.php ( 6.72 KB )
  58. /yingpanguazai/ssd/ssd1/www/b.460.net.cn/vendor/topthink/framework/src/think/initializer/BootService.php ( 0.77 KB )
  59. /yingpanguazai/ssd/ssd1/www/b.460.net.cn/vendor/topthink/think-orm/src/Paginator.php ( 11.86 KB )
  60. /yingpanguazai/ssd/ssd1/www/b.460.net.cn/vendor/topthink/think-validate/src/Validate.php ( 63.20 KB )
  61. /yingpanguazai/ssd/ssd1/www/b.460.net.cn/vendor/topthink/think-orm/src/Model.php ( 23.55 KB )
  62. /yingpanguazai/ssd/ssd1/www/b.460.net.cn/vendor/topthink/think-orm/src/model/concern/Attribute.php ( 21.05 KB )
  63. /yingpanguazai/ssd/ssd1/www/b.460.net.cn/vendor/topthink/think-orm/src/model/concern/AutoWriteData.php ( 4.21 KB )
  64. /yingpanguazai/ssd/ssd1/www/b.460.net.cn/vendor/topthink/think-orm/src/model/concern/Conversion.php ( 6.44 KB )
  65. /yingpanguazai/ssd/ssd1/www/b.460.net.cn/vendor/topthink/think-orm/src/model/concern/DbConnect.php ( 5.16 KB )
  66. /yingpanguazai/ssd/ssd1/www/b.460.net.cn/vendor/topthink/think-orm/src/model/concern/ModelEvent.php ( 2.33 KB )
  67. /yingpanguazai/ssd/ssd1/www/b.460.net.cn/vendor/topthink/think-orm/src/model/concern/RelationShip.php ( 28.29 KB )
  68. /yingpanguazai/ssd/ssd1/www/b.460.net.cn/vendor/topthink/think-helper/src/contract/Arrayable.php ( 0.09 KB )
  69. /yingpanguazai/ssd/ssd1/www/b.460.net.cn/vendor/topthink/think-helper/src/contract/Jsonable.php ( 0.13 KB )
  70. /yingpanguazai/ssd/ssd1/www/b.460.net.cn/vendor/topthink/think-orm/src/model/contract/Modelable.php ( 0.09 KB )
  71. /yingpanguazai/ssd/ssd1/www/b.460.net.cn/vendor/topthink/framework/src/think/Db.php ( 2.88 KB )
  72. /yingpanguazai/ssd/ssd1/www/b.460.net.cn/vendor/topthink/think-orm/src/DbManager.php ( 8.52 KB )
  73. /yingpanguazai/ssd/ssd1/www/b.460.net.cn/vendor/topthink/framework/src/think/Log.php ( 6.28 KB )
  74. /yingpanguazai/ssd/ssd1/www/b.460.net.cn/vendor/topthink/framework/src/think/Manager.php ( 3.92 KB )
  75. /yingpanguazai/ssd/ssd1/www/b.460.net.cn/vendor/psr/log/src/LoggerTrait.php ( 2.69 KB )
  76. /yingpanguazai/ssd/ssd1/www/b.460.net.cn/vendor/psr/log/src/LoggerInterface.php ( 2.71 KB )
  77. /yingpanguazai/ssd/ssd1/www/b.460.net.cn/vendor/topthink/framework/src/think/Cache.php ( 4.92 KB )
  78. /yingpanguazai/ssd/ssd1/www/b.460.net.cn/vendor/psr/simple-cache/src/CacheInterface.php ( 4.71 KB )
  79. /yingpanguazai/ssd/ssd1/www/b.460.net.cn/vendor/topthink/think-helper/src/helper/Arr.php ( 16.63 KB )
  80. /yingpanguazai/ssd/ssd1/www/b.460.net.cn/vendor/topthink/framework/src/think/cache/driver/File.php ( 7.84 KB )
  81. /yingpanguazai/ssd/ssd1/www/b.460.net.cn/vendor/topthink/framework/src/think/cache/Driver.php ( 9.03 KB )
  82. /yingpanguazai/ssd/ssd1/www/b.460.net.cn/vendor/topthink/framework/src/think/contract/CacheHandlerInterface.php ( 1.99 KB )
  83. /yingpanguazai/ssd/ssd1/www/b.460.net.cn/app/Request.php ( 0.09 KB )
  84. /yingpanguazai/ssd/ssd1/www/b.460.net.cn/vendor/topthink/framework/src/think/Request.php ( 55.78 KB )
  85. /yingpanguazai/ssd/ssd1/www/b.460.net.cn/app/middleware.php ( 0.25 KB )
  86. /yingpanguazai/ssd/ssd1/www/b.460.net.cn/vendor/topthink/framework/src/think/Pipeline.php ( 2.61 KB )
  87. /yingpanguazai/ssd/ssd1/www/b.460.net.cn/vendor/topthink/think-trace/src/TraceDebug.php ( 3.40 KB )
  88. /yingpanguazai/ssd/ssd1/www/b.460.net.cn/vendor/topthink/framework/src/think/middleware/SessionInit.php ( 1.94 KB )
  89. /yingpanguazai/ssd/ssd1/www/b.460.net.cn/vendor/topthink/framework/src/think/Session.php ( 1.80 KB )
  90. /yingpanguazai/ssd/ssd1/www/b.460.net.cn/vendor/topthink/framework/src/think/session/driver/File.php ( 6.27 KB )
  91. /yingpanguazai/ssd/ssd1/www/b.460.net.cn/vendor/topthink/framework/src/think/contract/SessionHandlerInterface.php ( 0.87 KB )
  92. /yingpanguazai/ssd/ssd1/www/b.460.net.cn/vendor/topthink/framework/src/think/session/Store.php ( 7.12 KB )
  93. /yingpanguazai/ssd/ssd1/www/b.460.net.cn/vendor/topthink/framework/src/think/Route.php ( 23.73 KB )
  94. /yingpanguazai/ssd/ssd1/www/b.460.net.cn/vendor/topthink/framework/src/think/route/RuleName.php ( 5.75 KB )
  95. /yingpanguazai/ssd/ssd1/www/b.460.net.cn/vendor/topthink/framework/src/think/route/Domain.php ( 2.53 KB )
  96. /yingpanguazai/ssd/ssd1/www/b.460.net.cn/vendor/topthink/framework/src/think/route/RuleGroup.php ( 22.43 KB )
  97. /yingpanguazai/ssd/ssd1/www/b.460.net.cn/vendor/topthink/framework/src/think/route/Rule.php ( 26.95 KB )
  98. /yingpanguazai/ssd/ssd1/www/b.460.net.cn/vendor/topthink/framework/src/think/route/RuleItem.php ( 9.78 KB )
  99. /yingpanguazai/ssd/ssd1/www/b.460.net.cn/route/app.php ( 1.72 KB )
  100. /yingpanguazai/ssd/ssd1/www/b.460.net.cn/vendor/topthink/framework/src/think/facade/Route.php ( 4.70 KB )
  101. /yingpanguazai/ssd/ssd1/www/b.460.net.cn/vendor/topthink/framework/src/think/route/dispatch/Controller.php ( 4.74 KB )
  102. /yingpanguazai/ssd/ssd1/www/b.460.net.cn/vendor/topthink/framework/src/think/route/Dispatch.php ( 10.44 KB )
  103. /yingpanguazai/ssd/ssd1/www/b.460.net.cn/app/controller/Index.php ( 4.81 KB )
  104. /yingpanguazai/ssd/ssd1/www/b.460.net.cn/app/BaseController.php ( 2.05 KB )
  105. /yingpanguazai/ssd/ssd1/www/b.460.net.cn/vendor/topthink/think-orm/src/facade/Db.php ( 0.93 KB )
  106. /yingpanguazai/ssd/ssd1/www/b.460.net.cn/vendor/topthink/think-orm/src/db/connector/Mysql.php ( 5.44 KB )
  107. /yingpanguazai/ssd/ssd1/www/b.460.net.cn/vendor/topthink/think-orm/src/db/PDOConnection.php ( 52.47 KB )
  108. /yingpanguazai/ssd/ssd1/www/b.460.net.cn/vendor/topthink/think-orm/src/db/Connection.php ( 8.39 KB )
  109. /yingpanguazai/ssd/ssd1/www/b.460.net.cn/vendor/topthink/think-orm/src/db/ConnectionInterface.php ( 4.57 KB )
  110. /yingpanguazai/ssd/ssd1/www/b.460.net.cn/vendor/topthink/think-orm/src/db/builder/Mysql.php ( 16.58 KB )
  111. /yingpanguazai/ssd/ssd1/www/b.460.net.cn/vendor/topthink/think-orm/src/db/Builder.php ( 24.06 KB )
  112. /yingpanguazai/ssd/ssd1/www/b.460.net.cn/vendor/topthink/think-orm/src/db/BaseBuilder.php ( 27.50 KB )
  113. /yingpanguazai/ssd/ssd1/www/b.460.net.cn/vendor/topthink/think-orm/src/db/Query.php ( 15.71 KB )
  114. /yingpanguazai/ssd/ssd1/www/b.460.net.cn/vendor/topthink/think-orm/src/db/BaseQuery.php ( 45.13 KB )
  115. /yingpanguazai/ssd/ssd1/www/b.460.net.cn/vendor/topthink/think-orm/src/db/concern/TimeFieldQuery.php ( 7.43 KB )
  116. /yingpanguazai/ssd/ssd1/www/b.460.net.cn/vendor/topthink/think-orm/src/db/concern/AggregateQuery.php ( 3.26 KB )
  117. /yingpanguazai/ssd/ssd1/www/b.460.net.cn/vendor/topthink/think-orm/src/db/concern/ModelRelationQuery.php ( 20.07 KB )
  118. /yingpanguazai/ssd/ssd1/www/b.460.net.cn/vendor/topthink/think-orm/src/db/concern/ParamsBind.php ( 3.66 KB )
  119. /yingpanguazai/ssd/ssd1/www/b.460.net.cn/vendor/topthink/think-orm/src/db/concern/ResultOperation.php ( 7.01 KB )
  120. /yingpanguazai/ssd/ssd1/www/b.460.net.cn/vendor/topthink/think-orm/src/db/concern/WhereQuery.php ( 19.37 KB )
  121. /yingpanguazai/ssd/ssd1/www/b.460.net.cn/vendor/topthink/think-orm/src/db/concern/JoinAndViewQuery.php ( 7.11 KB )
  122. /yingpanguazai/ssd/ssd1/www/b.460.net.cn/vendor/topthink/think-orm/src/db/concern/TableFieldInfo.php ( 2.63 KB )
  123. /yingpanguazai/ssd/ssd1/www/b.460.net.cn/vendor/topthink/think-orm/src/db/concern/Transaction.php ( 2.77 KB )
  124. /yingpanguazai/ssd/ssd1/www/b.460.net.cn/vendor/topthink/framework/src/think/log/driver/File.php ( 5.96 KB )
  125. /yingpanguazai/ssd/ssd1/www/b.460.net.cn/vendor/topthink/framework/src/think/contract/LogHandlerInterface.php ( 0.86 KB )
  126. /yingpanguazai/ssd/ssd1/www/b.460.net.cn/vendor/topthink/framework/src/think/log/Channel.php ( 3.89 KB )
  127. /yingpanguazai/ssd/ssd1/www/b.460.net.cn/vendor/topthink/framework/src/think/event/LogRecord.php ( 1.02 KB )
  128. /yingpanguazai/ssd/ssd1/www/b.460.net.cn/vendor/topthink/think-helper/src/Collection.php ( 16.47 KB )
  129. /yingpanguazai/ssd/ssd1/www/b.460.net.cn/vendor/topthink/framework/src/think/facade/View.php ( 1.70 KB )
  130. /yingpanguazai/ssd/ssd1/www/b.460.net.cn/vendor/topthink/framework/src/think/View.php ( 4.39 KB )
  131. /yingpanguazai/ssd/ssd1/www/b.460.net.cn/vendor/topthink/framework/src/think/Response.php ( 8.81 KB )
  132. /yingpanguazai/ssd/ssd1/www/b.460.net.cn/vendor/topthink/framework/src/think/response/View.php ( 3.29 KB )
  133. /yingpanguazai/ssd/ssd1/www/b.460.net.cn/vendor/topthink/framework/src/think/Cookie.php ( 6.06 KB )
  134. /yingpanguazai/ssd/ssd1/www/b.460.net.cn/vendor/topthink/think-view/src/Think.php ( 8.38 KB )
  135. /yingpanguazai/ssd/ssd1/www/b.460.net.cn/vendor/topthink/framework/src/think/contract/TemplateHandlerInterface.php ( 1.60 KB )
  136. /yingpanguazai/ssd/ssd1/www/b.460.net.cn/vendor/topthink/think-template/src/Template.php ( 46.61 KB )
  137. /yingpanguazai/ssd/ssd1/www/b.460.net.cn/vendor/topthink/think-template/src/template/driver/File.php ( 2.41 KB )
  138. /yingpanguazai/ssd/ssd1/www/b.460.net.cn/vendor/topthink/think-template/src/template/contract/DriverInterface.php ( 0.86 KB )
  139. /yingpanguazai/ssd/ssd1/www/b.460.net.cn/runtime/temp/b35eef690f41e64ad9e1c098cfc7d3bc.php ( 11.98 KB )
  140. /yingpanguazai/ssd/ssd1/www/b.460.net.cn/vendor/topthink/think-trace/src/Html.php ( 4.42 KB )
  1. CONNECT:[ UseTime:0.000604s ] mysql:host=127.0.0.1;port=3306;dbname=b460;charset=utf8mb4
  2. SHOW FULL COLUMNS FROM `fenlei` [ RunTime:0.000921s ]
  3. SELECT * FROM `fenlei` WHERE `fid` = 0 [ RunTime:0.000313s ]
  4. SELECT * FROM `fenlei` WHERE `fid` = 63 [ RunTime:0.000298s ]
  5. SHOW FULL COLUMNS FROM `set` [ RunTime:0.000631s ]
  6. SELECT * FROM `set` [ RunTime:0.000252s ]
  7. SHOW FULL COLUMNS FROM `article` [ RunTime:0.000591s ]
  8. SELECT * FROM `article` WHERE `id` = 533885 LIMIT 1 [ RunTime:0.000583s ]
  9. UPDATE `article` SET `lasttime` = 1776756590 WHERE `id` = 533885 [ RunTime:0.001161s ]
  10. SELECT * FROM `fenlei` WHERE `id` = 65 LIMIT 1 [ RunTime:0.000250s ]
  11. SELECT * FROM `article` WHERE `id` < 533885 ORDER BY `id` DESC LIMIT 1 [ RunTime:0.000448s ]
  12. SELECT * FROM `article` WHERE `id` > 533885 ORDER BY `id` ASC LIMIT 1 [ RunTime:0.000377s ]
  13. SELECT * FROM `article` WHERE `id` < 533885 ORDER BY `id` DESC LIMIT 10 [ RunTime:0.000721s ]
  14. SELECT * FROM `article` WHERE `id` < 533885 ORDER BY `id` DESC LIMIT 10,10 [ RunTime:0.000758s ]
  15. SELECT * FROM `article` WHERE `id` < 533885 ORDER BY `id` DESC LIMIT 20,10 [ RunTime:0.001003s ]
0.078972s