120平 , 手枪户型 , 听着就头疼吧?
但这对南京小夫妻 , 硬是把它装成了我今年看过最舒服的家~
先说为啥买这套 , 很简单 , 便宜。 年轻人嘛 , 预算有限 , 能省则省 , 户型奇葩点 , 忍了。
结果呢 , 改完我都想问设计师要联系方式了...
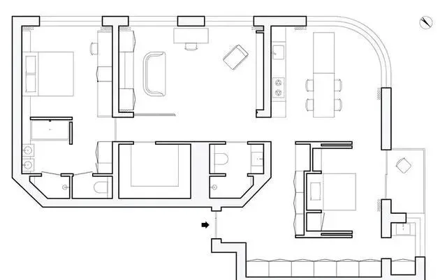
01 户型分析

你们看这平面图 , 是不是真的像把手枪?
但仔细看 , 每个房间都有窗 , 采光通透 , 这点很关键。 设计师改了几个地方:玄关两边全塞满柜子 , 主卫做成三分离 , 还专门规划了个衣帽间当全家的收纳中心。
最妙的是用玻璃推拉门分隔空间 , 既不挡光 , 又能保持整体极简的调性。
02 入户玄关

一进门是个长走廊 , 两边全是柜子。
说实话这种设计 , 收纳能力直接拉满。 一边连着门厅 , 一边连着卧室 , 中间用隔墙分开 , 动线清晰 , 不会乱。
03 多功能空间
这个区域我要重点讲 , 太能打了!

推开玻璃门进去 , 是客厅 , 是书房 , 也是临时卧室。 怎么做到的?


沙发背景墙后面藏了张墨菲床 , 需要的时候放下来就能睡。 平时收起来 , 完全看不出来 , 空间一点不浪费。


靠窗放了张原木书桌 , 配盆绿植 , 特别清爽。 阳光洒进来的时候 , 在这办公看书 , 心情都好。

关上黑色玻璃门呢 , 整个空间立马变私密。 朋友来借住 , 关上门就是独立卧室 , 安静又体面。
04 餐厨区域

餐厅和厨房做成一体的 , 中间放了个可移动的岛台餐桌。
平时两个人吃饭 , 推到一边省空间。 来客人了 , 拉出来 , 六七个人围着吃火锅完全没问题。

原来这有个鸡肋的落地窗 , 设计师改了一下 , 现在吃饭的时候能看风景。 春天看花 , 冬天看雪 , 这不比刷手机香?

厨房是开放式的 , 蒸箱烤箱全嵌入墙里 , 油烟机也藏起来了。 看着干净利落 , 但该有的功能一样不少 , 烟火气十足~
05 客卧


客卧用移动门隔开 , 打开的时候空间通透 , 关上就是独立卧室。 放了张1.5米的床 , 爸妈来住或者朋友留宿都够用。

床头做了收纳隔板 , 白色衣橱靠墙放 , 小空间也能塞下不少东西。 窗户一开 , 阳光进来 , 明亮得很。
06 主卧套房


主卧做成套房形式 , 最绝的是那道L型隔断墙。
浴缸藏在后面 , 墙上留了缝隙 , 若隐若现的 , 既保护隐私又有设计感。 第一次见的时候 , 我愣了好几秒 , 这脑洞也太妙了吧!

床尾空间也没浪费 , 梳妆台和书桌连在一起 , 中间还加了个储物柜。 化妆、办公、收纳 , 一个区域全搞定。
07 主卫设计


主卫做了四分离 , 洗漱台、马桶间、淋浴区、浴缸区 , 各自独立。
早上两个人同时洗漱、上厕所 , 互不干扰。 双台盆设计 , 连挤牙膏都不用排队 , 这才是真正提升生活质量的细节啊...
说真的 , 户型奇葩不可怕 , 可怕的是不会改。
这套房子给我最大的感受就是 , 简约不等于简单 , 每一处设计都有它的道理。 省钱买的房子 , 照样能住出高级感。
所以还在纠结户型的朋友们 , 不妨换个思路想想 , 也许奇葩户型才是性价比之选呢?