

刚刚,我从业内人士那收到情报:备受关注的南京新地王——河西中台湾名品城G90地块已经在组建团了,项目快要动了。目前正在对客户进行深度访谈调研,研究做什么样的产品,最快今年年底上市。
关于产品的初步设想方面,该业内人士透露,项目容积率为1.6,初步计划打造洋房、小高层,采用四代宅设计。户型方面,建面约190-400㎡,部分户型采用墅厅设计。(关于产品方面均为开发商的初步设想,具体以规划局和开发商正式公布的为准)
关于是否引入其它合作方,该业内人士表示,有很多企业想要跟奥体建设合作该地块,暂时还松口。
关于大家关心的价格问题,我打探到,200㎡左右的户型放风价在6.5万/㎡左右!听说有不少改善客户已经期待这个许久,毕竟项目单凭地段就可以在一众豪宅中杀出重围。
01.
从地段上来看,河西中台湾名品城G90地块可谓含着金钥匙出生,由内到外都散发着金贵气质。
首先,它的到来,也让河西中进入价值重估期。
2025年12月19日,G90地块竞争经过61轮激烈竞拍,最终奥体建设以总价16.11亿成交,成交楼面价45325元/㎡,成为南京“新地王”!

从此,河西中以一个确定性资产的姿态,强势重返城市价值的中心!
其次,顶流地标+顶流商业+双地铁,城市顶流氛围感拉满
项目位于河西中元通商圈核心,临近地铁2号线与10号线交汇的元通站,旁边汇聚了IFC、华采天地等已投入运营的商业地标,河西德基项目也正在紧锣密鼓地筹备中;南京国际博览中心、青奥双子塔等城市标志性建筑环绕四周。左手繁华商业商圈,右手城市地标,河西顶流地段的称号名副其实!

居住氛围也非常好,周边聚集了仁恒江湾城、华新城、碧瑶花园等知名豪宅, 曾经创下6万至7万元/㎡的销售佳绩。
其三,容积率仅1.6,地块自带“稀缺”属性
地块容积率只有1.6,比周边小区更低密。而且片区自华新城收官后,已经5年没有新增住宅供应,改善型需求持续积压。从未来来看,片区规划中再无新增住宅用地储备,它的稀缺属性将愈发凸显。
02.

除了台湾名品城G90地块外,河西另外4家楼盘也尤其值得期待!
① 中堃G72地块
近日,河西中中堃G72地块建面约185㎡与220㎡顶跃产品户型图曝光,空间极具定制性、舒适性。
建面约185㎡户型采用创新性的3+X空间布局设计,赋予业主灵活选择三房或四房格局的自由 。室内配置双套房设计,搭配三个独立卫生间,功能配置堪称奢华完备。


项目规划9栋7-11层洋房及1栋2层商业,其中3栋住宅设3.9米架空层。


户户带弧形露台,部分采用金属质感设计,外立面采用米白色,建筑线条简洁大气,颜值非常高。而且,中央配大面积水景,延续“贤坤”经典气质。

2025年10月,中北盛业以13.23亿元拿下河西中G72地块,楼面价34083元/㎡,溢价率0.3%。项目由中堃置业、中北地产、南京一九一二集团联合开发。
项目容积率仅1.35,位居中胜板块,紧邻河西大街,出门就是地铁7/10号线中胜站 。一街之隔龙湖河西天街, 与明基医院相邻。不仅配套优,周边产业也非常强,聚集新城科技园、河西金融城、阿里巴巴江苏总部等。
② 中堃G67地块
2025年11月,河西中中堃G67规划发布,打造4栋8-10层洋房四代宅,南向3栋为8F洋房,北侧1栋为10F小高层,提供不到100套房源,面积约为140㎡,预计今年下半年上市。

项目容积率只有1.35,在河西中如此低密极为少见。小区中央有大面积水景,外立面极具品质感,极具“贤坤花园”的特质,来有望打造为精致化、高附加值的低密社区标杆。

2025年9月,中堃置业联合智慧绿岛,以总价3.7亿、楼面价3.07万/㎡的底价竞得该地块。
地块同样位居中胜板块,一路之隔便是是南师附中科技园校区,近享地铁7/10号线中胜站、龙湖河西天街、明基医院等配套资源。
③ 北谷·翰文府
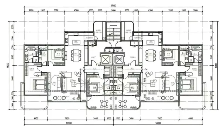
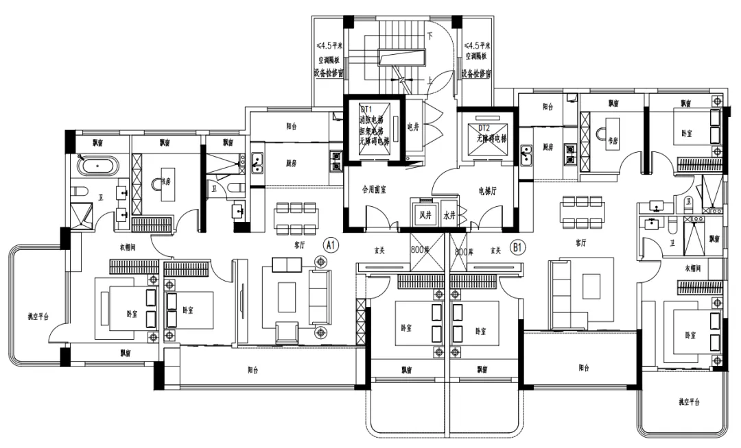
2025年11月,北谷·翰文府规划出炉,将打造2栋16-17层小高层,户型建面约135m²、155m²,只有60套房源。
从效果图可以看出,项目为户户带露台的四代宅产品,同时带底商。


项目1号楼有建面约155㎡A1(左)与建面约135㎡C1(右)两种户型:

2号楼有建面约155㎡A1(左)与建面约135㎡B1(右)两种户型:

2025年7月土拍中,经过89轮竞价由杭州北谷竞得项目所属地块,成交楼面价40215元/㎡,溢价率高达32.7%,成为鼓楼地王。
地块位于龙江板块,西侧一路之隔即为名校——金陵汇文学校,距在建地铁9号线江东门站不足800米,距离地铁13号线(规划)乐山路站约700米。附近还有吾悦广场、苏宁环球商贸城等商业,配套醇熟便捷。




2026年第一个重磅利好!
