点击蓝字 关注我们

坐落于上海市黄浦区核心的人民广场CBD,是上海的城市中心与核心商务区之一,这里汇聚了地铁1、2、8、14号线等多条轨道交通,不仅是魔都轨道交通最为便捷的区块,更是一个集行政、文化、商业、金融于一体的强大功能中心。
这里坐落着上海市人民政府、上海博物馆、大剧院、上海城市规划展示馆等重要地标,奠定了其深厚的文化底色。同时,它以人民广场为圆心,辐射至南京西路、南京东路步行街、外滩、淮海中路等周边区域,形成了高端写字楼林立的商务集聚区,吸引了大量金融、专业服务及企业总部入驻。
这篇介绍人民广场商圈的又一老字号地标建筑——浦汇大厦,又名华设大厦。

【项目概况】
浦汇大厦又名华设大厦,位于上海市黄浦区福州路318号,距离2号线10号线交汇的南京东路地铁站4号口约300米,地处外滩金融商业核心位置,步行可至南京东路步行街,外滩,人民公园三大休闲景点,周边聚集着上海来福士广场、都市总部大厦、海通证券大厦、港陆广场、港泰广场、海洋大厦、远洋商业大厦等众多高档写字楼,交通便利出行四通八达。
浦汇大厦总建筑面积约50210㎡,地上总高24层,属于上海滩核心CBD备受险资和基金公司青睐的小而美商办综合体项目之一,项目竣工于1999年,由高盛集团开发,后经腾飞中国、基汇资本以及世联行等多家基金公司收购改造,现由上海沪腾房地产自持招租。
项目几经转手改造后,目前拥有8米挑高的气派大堂,钢柱玻璃幕墙搭配红砖立面的美式工业风外墙,将大楼的古典气质与现代简约巧妙结合,与百年外滩历史建筑群相映成趣。

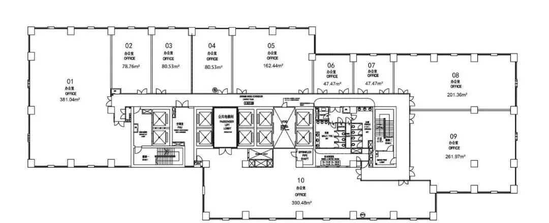
【租赁面积详情】
参考租金:3.5~4.5元/㎡·天
租赁面积:约50~1700㎡(部分精装交付)
物业费:35元/㎡·月(中央空调)
停车位:1500~2300元/月(临停9元/小时)
物业地址:上海市黄浦区福州路318号
竣工时间:1999年
总建筑面积:约50210㎡
总高:地上24层
标准层:约1700㎡
大堂挑空:约8米
层高: 净高约2.6~2.8米
车位费:1500~2300元/月(约160个)
电梯配置:客梯8部,货梯2部
地铁交通:2/10号线南京东路地铁口约300米
商务配套:紧挨南京东路步行街,周边商业中心云集

【实景图】





【咨询联系:15000467133】
更多上海写字楼租售信息私信或点链接:



\ 专业诚信 合作共赢