点击蓝字 关注我们

上海市静安区是上海地理位置最优越,最有历史文化底蕴以及最负盛名的辖区之一。静安区的商办楼宇主要集中在三个板块:以苏河湾一轴三带为轴心的苏河湾板块,以南京西路为轴心的静安寺-南京西路CBD,以及以大宁公园为核心的大宁板块。
上海静安寺-南京西路CBD是与人民广场,淮海中路,小陆家嘴,徐家汇以及古北虹桥开发区齐名的上海传统六大CBD,也是上海最负盛名的主要写字楼聚集地之一。这篇我们继续介绍位于上海静安寺-南京西路CBD的高品质办公楼——城利大厦。

【项目概况】
城利大厦位于上海市静安区江宁路219号,距离2号线12号线13号线南京西路地铁站约700米左右,地理位置优越,紧挨嘉禾中心、恒隆广场、中信泰富大厦、梅龙镇广场等知名商办写字楼项目。
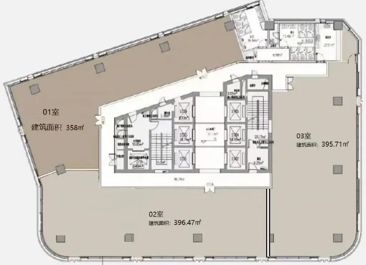
城利大厦总建筑面积仅37132.16㎡,单层只有约1000㎡出头,对于追求私密空间的1000㎡左右起来说相当适合。毕竟在寸土寸金的南京西路商圈,1000㎡左右很难找到像城利大厦这样的整层利用空间。另外目前城利大厦最新推出50平起以上的小面积精装办公,对于不想自己装修的企业来说可实现拎包入住。

【租赁面积详情】
参考租金:4~6元/㎡·天
参考面积:约50~1140㎡(可定制精装)
物业费:30元/㎡·月(中央空调)
项目地址:上海静安区江宁路219号
开发商:城利房地产
竣工时间:2022年
建筑面积:约37132.16㎡
办公面积:约20120㎡(L6~L28)
标准层:约1140㎡
办公总高:28层
标准层高:净高约2.7米
电梯配置:客梯6部,货梯2部
空调系统:中央空调
停车费:1800元/月(137个)
轨道交通:地铁2号线12号线13号线南京西路地铁口约700米

【实景图鉴】







【咨询热线:18501700965】



添加个人微信号请注明公司及来源