
Create a three-dimensional, high-density campus
南京师范大学附属中学晓庄校区面积约 6.67 万平方米,总建筑面积约为 9.5 万平方米,另有不计容的架空区面积约 1.7 万平方米,配置 42 个班级。总体属于用地不足的高密度、紧凑型校园。基地中心现存一处市级文保建筑 —— 民国空军第二通讯台旧址,同时还保留了一栋年代较新的高层学生宿舍楼需改造。
基于此现状,总平面规划以文保建筑及周边保留的大树作为核心景观,其南侧为教学办公区,北侧为生活运动区。北区西侧 400 米操场架空抬高,下方空间得以高效利用:临路一侧做家长可进入校园接送的停车区,减少对校门口道路的交通压力;中部为半下沉的游泳馆、训练馆、篮球馆以及风雨运动跑道,东侧为礼堂和食堂。架空操场之上,新旧两栋高层宿舍楼并置,与周边的高层住宅共同形成东高西低的城市肌理。师生课间登上操场,可获得在高密度环境中的远眺视野和放松的出口。
南区教学组团布局围绕文保建筑展开,建筑体量通过 Z 字弯折,形成五个半围合庭院。校园首层大量架空,庭院间可自由穿行,各建筑入口间也形成了彼此互动的视线关系。景观绿地伸入架空层,与多处下沉的半室外活动空间互动,为户外教学提供了场所。建筑间在不同标高上用开放平台或大跨连廊连通,把公共性延伸到上层教学空间。
建筑体量转折处设置的中庭、开敞楼梯与休息区,连廊内的开放阶梯教室,3.6 米的宽走廊,都为学生课间自主学习、就近活动提供了多元化的场所。
Restructure the Open Stacking and Reading Space
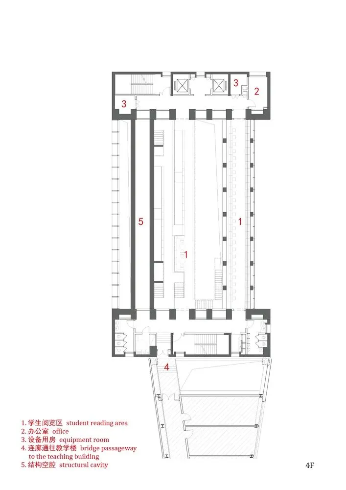
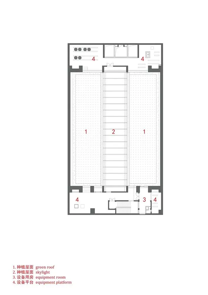
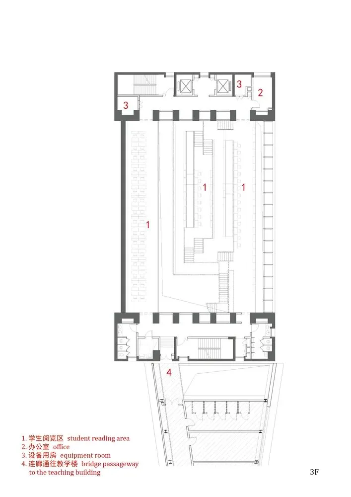
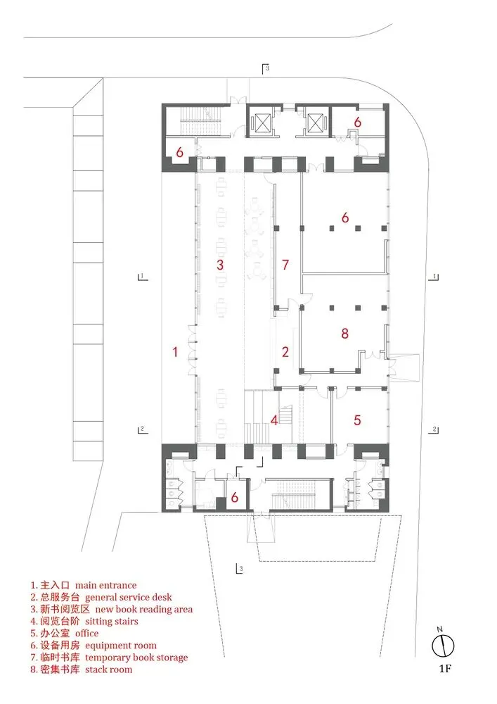
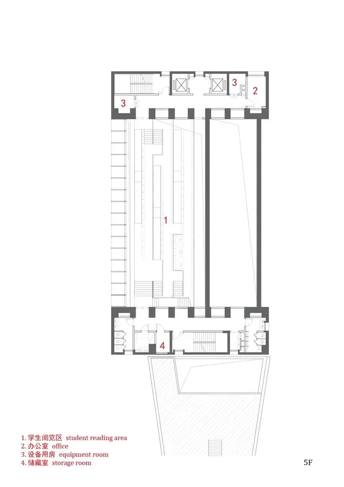
图书馆位于校园中心的文保建筑广场东侧,规模约 3800 平方米,是“开放式学校”设计理念的具体体现。
设计打破楼层的常规做法,将五处大跨度的管状或阶梯状藏阅空间交错穿插在共享中庭内,两类空间分别对应半封闭阅览和开放阅览两种阅览模式。顶部天窗为中庭引入自然光线,经多次反射渐次照亮中庭,营造出富有层次的光影体验。开放的阶梯阅览区通过一条连续的“漫游路径”串联,从首层门厅依次连接新书阅览区、服务台、阅读看台及多个标高的学生阅览阶梯平台,最终延伸至顶层电子阅览室。路径上均有坡道,可实现平台间的无障碍连通。
半封闭的管状阅览空间则主要容纳教师阅览室与藏书区,其标高与楼层相对应。阶梯及管状阅览空间采用大跨度斜向箱型与矩形截面梁结构,均架设于中庭两端的核心筒上。由此,中庭得以实现大面积的斜高窗,将室外大树的绿意映入室内。同时,管状阅览室利用通长条窗,建立与中庭的视觉联系。
Integration of Structure and Equipment
图书馆内外大量使用了光面竹胶板的清水混凝土,结构既是材料,也定义了空间。光滑的清水混凝土与实木地板、栏板及书架相结合,平衡了室内空间的雕塑感与亲切感。设备管道从中庭两侧的核心筒内接出,排布于大跨结构间的梁腔里。
地面为架空做法,容纳喷淋管或风管,以保证清水混凝土表面的整体性。空调出风末端整合在固定书架、桌面、栏板等设施内,实现建筑、结构、设备、装修的一体化设计。
本项目主要采用剖面推敲整合空间形式、结构与设备需求,并通过 Revit 模型复核与施工阶段的全专业 BIM 协调,确保了复杂空间与清水混凝土结构的高完成度。
建筑图纸
项目信息
项目信息/ Project Info业主/Client: 南京师范大学附属中学/High School Affiliated to Nanjing Normal University地点/Location: 南京市栖霞区/Qixia District, Nanjing, Jiangsu Province, China主持建筑师/Principal Architects: 张永和、鲁力佳/Yung Ho Chang, Lijia LU项目团队/Project Team:规划/Planning:梁小宁、黄舒怡、王玥/LIANG Xiaoning, HUANG Shuyi, WANG Yue建筑/Architecture:黄舒怡、王文志、王玉山、柳超、张鹤、何泽林、焦慧敏、汤艳妮 等/HUANG Shuyi, WANG Wenzhi, WANG Yushan, LIU Chao, ZHANG He, HE Zelin, JIAO Huimin, TANG Yanni etc.室内/Interior:王文志、黄舒怡/WANG Wenzhi, HUANG Shuyi景观/Landscape:师琦/SHI QI施工图设计/Construction Documents Design: 江苏省建筑设计研究院股份有限公司/Jiangsu Province Architectural D&R Institute CO., LTD.施工单位/Construction Firm:江苏南通二建集团(北区),通州建总集团(南区)/Jiangsu Nantong No.2 Construction Engineering Group,Tongzhou Construction Group基地面积/Site Area: 67189.57 ㎡建筑面积/Building Area: 80581㎡(新建部分/newly built)、14142㎡(改造部分/renovated)建筑高度/Building Height: 23.9 m(多层部分/multi-story)49.6m(高层部分/high-rise)设计周期/Design Period: 2019 – 2022建造周期/Construction Period: 2022 – 2025竣工时间/Completion Time: 2025